Với ý tưởng táo bạo, chủ nhân cá tính đã biến container thành những mảng không gian xinh xắn và tiện nghi không thua kém bất kỳ ngôi nhà thông thường nào.
Ngôi nhà container cá tính nằm ở Corboba, Argentina, là sự kết hợp của hai thùng container xếp thành hình chữ L, không gian sống của thiết kế này có diện tích sử dụng tổng cộng 195m².

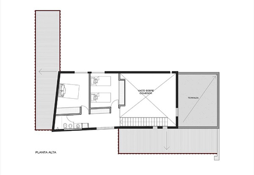
Thiết kế nhà hình chữ L.
Tầng một của ngôi nhà này bao gồm cửa chính, nhà bếp, nhà ăn, khu vực giặt giũ, phòng tắm, phòng làm việc và nhà kho. Các khu vực chức năng này được chia thành hai khối, khu vực ở giữa là phòng khách, khoảng đất trống phía trước là nơi để xe và tổ chức tiệc nướng. Tầng trên là nơi của các không gian riêng tư, cụ thể là phòng ngủ và khu vực tắm rửa.

Tầng một gồm phòng sinh hoạt gia đình, phòng khách, phòng bếp, sảnh.

Tầng hai được thiết kế lạ mắt với màu sơn trắng, tương phản hoàn toàn với màu sơn của tầng 1.
Dự án này là một minh chứng của sự đổi mới công nghệ, đơn giản hóa các vật liệu xây dựng và là một cuộc cách mạng về kỹ thuật và thẩm mỹ trong kiến trúc. Ngôi nhà container hoàn thành vào năm 2014 sau khi đã có đầy đủ các chức năng giống như bất cứ ngôi nhà thông thường nào với một vẻ ngoài cực kỳ bắt mắt.

Một góc nhà còn nguyên phần thô lồi lõm của container tạo nên nét riêng biệt cho ngôi nhà.

Vật liệu đơn giản nhưng vẫn đẹp mắt và hiện đại.
Các kiến trúc sư sử dụng bọt polyurethane (PU) cho nội thất, sơn trần nhà với latex và lót các bức tường với các tấm vữa (plasterboard) để “giấu” đường dây điện trong nhà. Sàn bê tông được đánh bóng để tạo cảm giác sạch sẽ, làm không gian trở nên xuyên suốt, rộng rãi hơn.

Sàn và trần nhà được chăm chút cẩn thận.
Mặt tiền khép kín ở phía nam và phía tây tạo sự riêng tư. Các không gian bên trong được xây dựng theo phong cách mở với những khung cửa kính rộng hướng ra sân, kết nối cảnh quan thiên nhiên bên ngoài và khu vực sống bên trong.

Cửa kính trong suốt giúp ngôi nhà sáng sủa hơn.
Bảng màu sơn sử dụng gồm ba màu đen, trắng, đỏ được lựa chọn nhằm làm nổi bật tính hiện đại của nơi này cũng như mang lại sự đơn giản cho tổng thể.

Màu sơn làm nổi bật cá tính và nét hiện đại.

Khung cửa sổ nhỏ với hình dáng độc đáo.

Bên trong ngôi nhà container vẫn đẹp và rộng rãi như mọi ngôi nhà khác.
Những ngôi nhà container xinh xắn và sáng tạo luôn có đủ sức truyền cảm hứng cho bất cứ ai đang mơ ước có được ngôi nhà cho riêng mình. Tuy nhiên, trước khi quyết định sở hữu nhà container, bạn cần quan tâm đến vài khía cạnh quan trọng:
Đầu tiên, bạn cần có hiểu biết về khu đất ở địa phương bạn sinh sống liệu có phù hợp với nhà container hay không. Bạn cần đảm bảo về những chiếc thùng container mà mình lựa chọn. Về kích thước, về tình trạng hiện tại của container và cần xem xét kỹ liệu chúng có quá cũ hoặc móp, lệch ở chỗ nào không.
Sau đó, hãy tìm kiếm một nhà thầu tốt, những người có khả năng thực hiện một dự án nhà container từ đầu đến cuối. Đồng thời, bạn thân bạn cũng nên tìm hiểu, nghiên cứu về những điều liên quan đến xây dựng và thiết kế nhà container. Quan trọng hơn cả, hãy chú ý đến các đường dây điện trong khi nhà đang được lắp đặt để tránh tối đa các sự cố. Ngoài ra, hãy lưu ý đến hướng gió và thời tiết trong khu vực để có chiến lược đối phó thật tốt.


Bản vẽ của ngôi nhà container thiết kế hình chữ L.
Theo Trí Thức Trẻ