Kính chào chuyên mục Nhà đẹp,
Mình có mảnh đất 2 mặt hẻm rộng 2.5m, diện tích XD 20.47m². Nhà hướng Đông Bắc (hẻm chính - chiều ngang 5.2m), nhu cầu xây:
- Trệt: để xe, bếp, P. Khách. Lửng: P. Ngủ kết hợp với P. Khách, WC (nếu không bố trí được WC có thể dời xuống Tầng Trệt).
- Lầu 1: Phòng Ngủ, WC. Lầu 2: Phòng ngủ nhỏ, WC, Giặt, P. Thờ.
Kính nhờ Nhà đẹp tư vấn thiết kế phương án phù hợp.
Chân thành cảm ơn.
Thiên Thanh
Kiến trúc sư tư vấn:
Dựa theo những thông tin mà bạn cung cấp và yêu cầu thiết kế cho ngôi nhà, chúng tôi xin đưa ra phương án mặt bằng tư vấn thiết kế để bạn tham khảo.

Mặt bằng hiện trạng

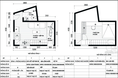
Mặt bằng tư vấn thiết kế tầng 1 và gác lửng.

Mặt bằng tư vấn thiết kế tầng 2 và tầng 3.
Mảnh đất của bạn ưu điểm là có hai mặt thoáng, nhược điểm là diện tích hẹp và mảnh đất bị vát không được vuông vức. Theo yêu cầu và mong muốn của bạn đề ra thì chúng tôi đưa ra phương án tư vấn thiết kế là tầng một gồm khu để xe, phòng khách, ăn, bếp, có gác lửng làm phòng ngủ. Tầng hai là phòng ngủ và nhà vệ sinh của master. Tầng ba gồm phòng ngủ, phòng thờ và sân phơi.
Bước vào nhà là khoảng sảnh đệm và khu vực để xe nhỏ. Nối liền là không gian sinh hoạt chung gồm phòng khách, ăn và bếp. Vì không gian khá bé, cùng với việc tiết kiệm diện tích thì chúng tôi đã bố trí bộ bàn ghế sofa thành hai chức năng chính là tiếp khách và bàn ăn. Đối diện là cầu thang chạy dài bao quanh căn nhà để tiết kiệm diện tích, dưới gầm cầu thang là nơi phân chia các khu chức năng gồm: tủ giày, kệ ti vi và khu vực nấu nướng, tạo ra 1 không gian nấu ăn lý tưởng cho bà nội trợ. Nhà vệ sinh được bố trí ở cuối nhà , khu vực đất xấu nhất nhưng diện tích sử dụng khá là thoải mái.
Lên tầng hai giữa chừng sẽ có gác lửng là phòng ngủ ở phía trên phòng khách, căn phòng có đầy đủ nội thất hiện như: giường, bàn làm việc và tủ quần áo. Tầng hai là phòng ngủ của master có diện tích thoải mái nhất với nhà vệ sinh riêng được bố trí ở góc đất bị vát. Phòng ngủ sẽ luôn tràn ngập ánh sáng nhờ hệ của sổ từ phía mặt tiền. Căn phòng được bố trí đầy đủ các đồ nội thất đơn giản như: giường ngủ, bàn làm việc, tủ quần áo, tivi.
Lên tầng ba gồm: phòng ngủ con, phòng thờ, nhà vệ sinh và sân phơi. Phòng ngủ con được bố trí như phòng ngủ master gồm giường ngủ và bàn học, do diện tích hạn chế nên chúng tôi tư vấn cho bạn sử dụng giường có ngăn kéo để quần áo và đồ đạc bên dưới gầm. Bàn học ưu tiên để gần của sổ để lấy ánh sáng. Bên cạnh là phòng thờ thanh tịnh. Phía cuối cầu thang chúng tôi bố trí nhà vệ sinh và sân phơi để tiết kiệm diện tích một cách triệt để.
Cách bố trí đồ nội thất như vậy sẽ giúp cho không gian sống thêm tiện nghi và trở nên tốt hơn. Ngoài ra bạn cũng không nên trang trí rườm ra, điều đó sẽ làm cho căn phòng thêm chật chội. Bạn có thể sử dụng giấy dán tường hay những đồ decor độc đáo và bắt mắt, nó sẽ làm điểm nhấn giúp cho căn nhà của bạn thú vị và hấp dẫn hơn.
Hy vọng với phương án tư vấn thiết kế và bố trí này sẽ đáp ứng được tiện nghi cũng như nhu cầu sinh hoạt của bạn và gia đình. Sau đây là một số hình ảnh tham khảo giúp bạn hình dung không gian sống của mình được tốt hơn.

Bộ ghế sofa chữ L tiết kiệm diện tích.

Phòng ngủ master tràn ngập ánh sáng, không gian và cách bố trí nội thất mạch lạc, ngăn nắp.

Phòng ngủ con với tone màu sáng tạo cảm giác rộng rãi và thoáng mát.

Phòng ngủ tầng lửng có diện tích khá thoải mái.

Hệ tủ bếp dưới gầm thang vẫn rất hiện đại và tiện nghi.

Phòng thờ thanh tịnh.

Nhà vệ sinh đơn giản sạch sẽ.
Theo Trí thức trẻ