Tượng Phật liên quan đến các vấn đề tâm linh nên cần được coi trọng.
Hỏi:
Xin chào chuyên gia!
Tôi muốn xin lời khuyên phong thủy cho căn hộ sắp hoàn thiện của mình. Hiện tại, dựa vào cách bố trí các phòng, thì bàn thờ Phật nên bày ở góc nào cho phù hợp? Thêm vào đó, tôi có cần chú ý đến kích thước và tỷ lệ của bàn thờ và tượng hay không?

Rất mong chuyên gia giải đáp giúp! Tôi cảm ơn rất nhiều!
Minh Nguyệt (Hoàng Mai, Hà Nội)
Trả lời:
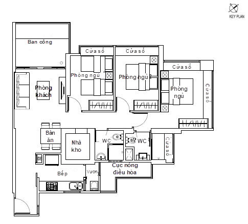
1. Vị trí đặt bàn thờ
Bàn thờ Phật cần nằm ở gian phòng khách. Nếu nhà có nhiều tầng thì đặt bàn thờ ở tầng trên - tránh ở vị trí chiếu dưới nhà vệ sinh, gầm giường. Cấm kị đặt bàn thờ tại phòng ngủ vì đây là không gian riêng tư của vợ chồng, con cái.
Sơ đồ dưới đây đánh dấu 4 vị trí mà gia đình có thể cân nhắc bài trí bàn thờ Phật trong ngôi nhà của bạn.
- Vì không gian phòng ăn và phòng khách rất hẹp nên nếu muốn đặt bàn thờ ở vị trí thứ 2 thì phải di chuyển bàn ăn ra khu vực tường sát phòng khách.
- Ở vị trí thứ 1 thì bàn ăn có thể ở nguyên tại chỗ nếu nhỏ gọn hoặc phải di chuyển nếu có kích thước quá lớn.
- Vị trí tốt nhất để đặt bàn thờ trong nhà xếp theo thứ tự là 1, 2, 3 và 4.
- Vị trí xấu nhất trong nhà là nằm trong khoảng mũi tên đỏ "A" được đánh dấu.
- Nếu đặt ban thờ Phật ở vị trí 3 hoặc 4 thì phải di chuyển TV ra vị trí khác để tránh sóng điện từ làm nhiễu loạn các nguồn năng lượng thanh tịnh cần có của khu thờ.
- Vì tôi chỉ xem hình mà không biết tình hình thực tế của ngôi nhà nên cần chú ý điểm sau đây. Nếu ở bức tường phía ngoài ban công sát vị trí số 3 có lắp đặt vòi nước thì bạn nên cân nhắc đặt ban thờ ở vị trí thứ 4. Ban thờ nên ở nơi khô ráo, thoáng khí, không ẩm thấp.
2. Kích thước của ban thờ
Chắc chắn bạn cần quan tâm đến kích thước của ban thờ. Thực sự tốt khi bày tượng Phật thật to trong nhà. Tuy nhiên, cần căn cứ vào diện tích căn phòng để chọn kích thước ban thờ và tượng Phật phù hợp. Tượng Phật nhỏ cũng vẫn sẽ có hiệu quả, chỉ là mang lại nguồn năng lượng ít hơn.

Nên đặt tượng Phật ở độ cao khoảng 1m và nhìn thẳng ra cửa để khí trường trong nhà toàn bộ đều mang năng lượng tốt. Vì vậy, vị trí số 1 là tốt nhất.
Theo Đông Đông (Geomancy) (Khám phá)