Căn hộ nhỏ mà hôm nay chúng tôi muốn giới thiệu đến các bạn nằm ở một chung cư tại thủ đô Paris hoa lệ của nước Pháp xinh đẹp. Tuy diện tích chỉ vỏn vẹn 30m² và không có ban công nhưng trông nó vẫn rất xinh xắn. Đây là một trong những thiết kế của kiến trúc sư tài năng - Richard Guilbault.

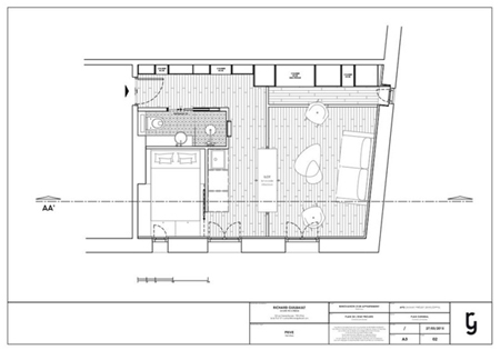
Sơ đồ căn hộ 30m² do kiến trúc sư Richard Guilbault thiết kế.
Chủ nhân của căn hộ chung cư này là một cặp vợ chồng trẻ, với mong muốn bố trí 4 khu vực chức năng chính trong nhà, bao gồm phòng khách, bếp, phòng ngủ và phòng tắm. Căn hộ nhỏ đã được kiến trúc sư tối ưu hóa không gian để có thể tận dụng tối đa diện tích lưu trữ cũng như kết hợp trang trí hiệu quả. Để thực hiện nhiệm vụ này, Richard Guilbault đã lựa chọn phong cách thiết kế mở. Phong cách này ngày càng được nhiều người ưa chuộng không chỉ nhờ tính thẩm mỹ mà còn ở sự tiện ích.

Phong cách thiết kế mở được ưa chuộng bởi tính thẩm mỹ, tiện ích.
Không có sự hiện diện của những vách ngăn, những bức tường thô cứng, căn hộ trở nên rộng rãi hơn hẳn. Màu trắng được sử dụng làm gam màu chủ đạo bởi sự thanh lịch, mới mẻ, dễ dàng làm nền cho các tông màu khác. Sự phối hợp giữa nền tường trắng và sàn gỗ nhạt màu càng rất hài hòa và đẹp mắt. Tại đây, phòng khách, bếp và khu vực ăn uống nằm trên cùng một mặt phẳng. Cộng với những ô cửa sổ lớn tạo điều kiện cho ánh sáng tự nhiên soi rọi cho không gian thêm phần thoáng đãng.

Những ô cửa đón ánh sáng tự nhiên cho không gian thoáng đãng.
Tại khu vực phòng khách được bố trí một chiếc ghế sofa đôi êm ái với màu xám trung tính, sang trọng. Mẫu bàn cafe thanh lịch kết hợp với chiếc ghế trắng kiểu dáng bập bênh và ghế vàng nổi bật. Nếu tinh ý, bạn sẽ nhận ra giữa nơi tiếp khách và khu vực bếp được phân cách bởi một “đường kẻ trắng” trên sàn nhà. Rất đơn giản nhưng thú vị đúng không nào?

“Đường kẻ trắng” trên sàn nhà giúp phân vùng khu vực.
Mẫu bếp hình chữ I (bếp và tủ thiết kế theo đường thẳng) được các bà nội trợ cực kỳ ưu ái bởi sự gọn gàng, tiện lợi. Với mẫu bếp này, lối đi sẽ được giải phóng ít nhiều nên sẽ tiết kiệm rất nhiều diện tích đối với những căn hộ “khiêm tốn”. Chính giữa bếp và phòng khách là khu vực ăn uống, với chiếc bàn dáng cao và ghế ngồi như tại các quầy bar. Bộ đèn thả gồm 3 chiếc ở phía bên trên cũng tạo vẻ đẹp và điểm nhấn duyên dáng.

Mẫu bếp hình chữ I giúp giải phóng lối đi, tiết kiệm diện tích.

Bộ ba đèn thả tạo điểm nhấn duyên dáng cho khu vực ăn uống.
Về hệ thống lưu trữ, kiến trúc sư đã gợi ý cho cặp vợ chồng trẻ tận dụng tối đa các mẫu nội thất với hình thức đơn giản nhưng đa chức năng. Họ có thể sử dụng những phần lắp cửa kính trong suốt để làm tủ sách, kệ đựng rượu vang, hộc đựng phụ kiện trang trí,… Các hộc tủ khuất được dùng để lưu trữ đồ dùng cá nhân. Mẫu nội thất này được bố trí sát tường hành lang và phòng khách để không chiếm lối đi, đồng thời lắp đặt hệ thống đèn chiếu sáng bên trong tạo sự ấm áp và thu hút.

Mẫu nội thất với hình thức đơn giản nhưng đa chức năng.

Các ngăn tủ được phân thành nhiều màu để dễ phân biệt.

Làm tủ sách, kệ đựng rượu vang, hộc đựng phụ kiện trang trí,…

Hệ thống đèn chiếu sáng bên trong tạo sự ấm áp và thu hút.
Phòng tắm của căn hộ được bố trí ngay phía bên tay phải của hành lang, ngay khu vực cửa ra vào. Để tạo sự khác biệt cũng như tạo điểm nhấn cho phòng tắm nổi bật hơn, chủ nhân đã sử dụng gạch lát sàn hoa văn màu trắng - xanh lá, thay vì mẫu sàn gỗ như các căn phòng còn lại. Không gian này khá dài và hẹp, vì thế được sắp đặt theo chiều dọc, gồm 2 phần: buồng tắm đứng với vòi hoa sen và khu vực bồn rửa, toilet. Ngăn cách giữa chúng là cửa kiếng trong suốt, thêm vào đó là tấm gương lớn trên tường tạo cảm giác đánh lừa người nhìn về một không gian rộng rãi hơn so với thực tế.

Tủ lưu trữ sát tường hành lang, phòng khách để không chiếm lối đi.

Phòng tắm được bố trí ngay phía bên tay phải của hành lang căn hộ.

Gồm 2 phần: buồng tắm đứng và khu vực bồn rửa, toilet.

Vách ngăn trong suốt kèm tấm gương lớn đánh lừa thị giác.

Gạch lát hoa văn tạo sự khác biệt với sàn gỗ ở các phòng còn lại.
Như vậy, dù chỉ với diện tích vỏn vẹn 30m² nhưng căn hộ chung cư này vẫn ấn tượng. Vẻ đáng yêu ấy được tạo nên nhờ phong cách trang trí đầy cảm hứng, kèm theo kế hoạch bố trí khoa học rất đáng để chúng ta học hỏi.
Theo Trí Thức Trẻ