Dù diện tích chỉ 83m² nhưng căn hộ này lại có tới 4 phòng ngủ, đáp ứng được nhu cầu sinh hoạt của những gia đình đông người.
Điểm đáng kể nhất của căn hộ 83m² này là nó đến 4 phòng ngủ riêng biệt, điều thực sự hiếm gặp ở những không gian sống có cùng diện tích. Chỉ có điều khi có tới 4 phòng ngủ trong một căn hộ tầm trung, đương nhiên bạn sẽ phải có kĩ thuật sắp xếp, biết cách chọn nội thất và hi sinh một số không gian.
![]() |
|
Sảnh dẫn vào nhà. Nếu để ý một chút, bạn sẽ thấy mỗi phòng đều có tên, có số, điều này không chỉ giúp khách đến chơi dễ nhận biết mà còn là điểm nhấn vui vẻ trong chính ngôi nhà.
Bên ngoài mỗi phòng đều có những tấm biển xinh xinh để báo hiệu và cũng là để trang trí cho căn hộ có tông trắng chủ đạo.
Ngay cả các phòng ngủ cũng được đánh số.
|
Và bây giờ hãy đi vào từng phòng để khám phá cách sắp xếp không gian bên trong. Tuy nhiên có một điểm bạn luôn cần nhỏ rằng, bí quyết để sống trong những căn phòng nhỏ là sự ngăn nắp, gọn gàng và hạn chế đồ nội thất rườm rà.
![]() |
|
Các phòng ngủ đều khá nhỏ, vừa đủ để kê giường ngủ, bàn làm việc, tủ đồ. Bàn làm việc đưa ra cửa sổ để "hứng" sáng. Dễ dàng nhận thấy đồ đạc trong nhà đều rất đơn giản, nhỏ xinh nên không bị cảm giác cồng kềnh.
Cách bài trí không gian thực sự rất quan trọng trong các ngôi nhà nhỏ, và bí quyết bạn nên tham khảo là hạn chế đồ, lựa chọn đồ dùng thật đơn giản.
Cũng đừng nghĩ nhà nhỏ là không thể trang trí được gì, bạn thấy đấy một vài chậu cây nho nhỏ vẫn đủ sức làm căn phòng tươi sáng hơn hẳn.
|
Ở khu vực sinh hoạt chung, bạn sẽ thấy căn hộ này có chút thiếu hụt khi chỉ có bếp nấu, bàn ăn khu vệ sinh, mà thiếu hẳn đi không gian tiếp khách riêng biệt. Biết làm sao được bởi diện tích nhỏ lại có quá nhiều phòng ngủ. Đừng quá lo lắng trên thực tế bạn có thể tiếp khách ở khu vực bàn ăn cũng rất xinh xắn, sạch đẹp. Còn bạn nhất thiết phải có phòng khách và chẳng cần đến 4 phòng ngủ thì chỉ việc bớt đi một phòng ngủ là xong.
![]() |
|
Khu bếp và phòng khách tuy nhỏ nhưng sạch sẽ và có sự tách biệt nhất định.
Tủ bếp chữ I rất hợp cho những không gian sống nhỏ.
Khu vực bàn ăn hoàn toàn có thể kiêm nhiệm thêm chức năng tiếp khách nếu bạn không quá cầu kỳ.
|
Căn hộ này có một phòng vệ sinh và một phòng tắm kiêm vệ sinh, khá tiện cho gia đình đông người cùng sử dụng. Yếu tố bài trí đơn giản và gọn nhẹ cũng được áp dụng triệt để ở đây nhằm đảm bảo được sự tiện nghi cho không gian sống nhỏ.
![]() |
|
Khu vệ sinh cực gọn gàng.
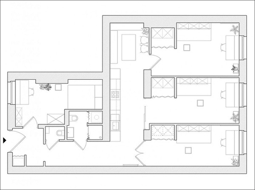
Sơ đồ thiết kế của căn hộ.
|
Trong cuộc sống nơi phố thị, thì kiểu căn hộ tầm 80m² như thế này là rất phố biển. Tùy vào trường hợp mà bạn có thể tham khảo cách sắp xếp của không gian này rồi thêm bớt cho phù hợp. Ngoài ra kiểu sắp xếp thế này cũng rất lý tưởng cho nhóm bạn cần thuê chung một căn hộ để giảm chi phí mà vẫn đảm bảo được tiện nghi.
Theo Trí Thức Trẻ











