Sự kết hợp giữa hai gam màu trung tính đối lập trắng và đen mang lại nét khác biệt và ấn tượng cho mặt tiền ngôi nhà phố.
Hỏi:
Kính gửi chuyên mục Nhà đẹp!
Tôi được bố mẹ cho mảnh đất nhỏ cạnh nhà ông bà diện tích 58m2 với mặt tiền 5m, chiều dài 11,6m. Sắp tới tôi muốn xây nhà hiện đại và thoáng mát trên nền đất này. Số tiền vợ chồng tôi có khoảng 750 triệu đồng. Các không gian chức năng tôi muốn được thiết kế thoáng mát. Tôi dự định phân chia phòng cho các tầng cụ thể như sau:
- Tầng 1 gồm có: Chỗ để xe, phòng khách, bếp và phòng ăn.
- Tầng 2 gồm có: Phòng sinh hoạt chung, ba phòng ngủ, hai phòng tắm cho vợ chồng tôi và hai con.
- Tầng 3 gồm có: Phòng thờ, kho, phòng giặt và sân phơi.
Mong Kiến trúc sư (KTS) sớm đưa ra phương án tư vấn thiết kế phù hợp giúp gia đình tôi. Tôi cảm ơn KTS rất nhiều!
(LTS – Quảng Nam)
Trả lời:
Theo thông tin gia chủ cho biết thì mảnh đất gia đình đang sở hữu không quá rộng cũng không quá hẹp mà vừa vặn để có thể xây một ngôi nhà cho gia đình bốn người ở. Về các phòng chức năng anh muốn xây dựng số lượng thì vừa đủ. Tuy nhiên, tầng hai hơi nhiều phòng. Vì vậy KTS sẽ phải cân nhắc phân chia sao cho hợp lý trên một mặt bằng. Về số tiền gia đình chuẩn bị được, KTS nhận thấy hoàn toàn đủ để xây một ngôi nhà ba tầng hiện đại. Tuy nhiên, vẫn cần tính toán để các khoản tương đối đủ, không bị chênh trong quá trình xây dựng.
nội thất cơ bản.
Tổng chi phí dự tính là 795 triệu đồng. Cụ thể từng hạng mục như sau:
| STT | Hạng mục công trình | Chi phí (Đơn vị: Triệu đồng) |
| 1 | Phần thô | 533 |
| 2 | Gạch | 31 |
| 3 | Đá granit | 28 |
| 4 | Cửa | 29 |
| 5 | Hệ thống điện nước | 21 |
| 6 | Sơn nhà | 33 |
| 7 | Nhôm kính | 18 |
| 8 | Tủ bếp và bàn ăn | 25 |
| 9 | Giường ngủ ba phòng | 15 |
| 10 | Tủ quần áo | 22 |
| 11 | Sofa và tủ phòng khách | 23 |
| 12 | Cổng và các chi phí phát sinh khác | 17 |
| Tổng | 795 (triệu đồng) |
Dưới đây là phương án thiết kế chi tiết do KTS tính toán đưa ra:
*Về phương án thiết kế mặt bằng:
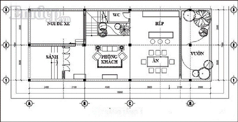
- Mặt bằng tầng 1:
Tầng một KTS sẽ để ra một phần diện tích làm sân trước, đồng thời được sử dụng làm nơi để xe cho cả gia đình. Phòng khách và bếp ăn bên trong chia đều không gian. Để mang không gian xanh vào nhà giúp không gian sống ngập tràn sức sống, KTS tận dụng góc nhỏ gần cầu thang làm tiểu cảnh với cây cảnh và hòn non bộ nước chảy róc rách. Ở phía sân sau, KTS cũng thiết kế một khoảng vườn nho nhỏ để giúp lưu thông không khí và không gian luôn tươi vui, rực rỡ sắc màu cây cối, hoa lá.
![]() |
| Mặt bằng tầng 1. |
- Mặt bằng tầng 2:
Ba phòng ngủ và một phòng sinh hoạt chung được bố trí trên tầng hai. Phòng sinh hoạt chung và phòng ngủ cho gia chủ được sắp xếp phía trước không gian. Cả hai phòng đều có cửa mở ra ban công trước nhà. Phòng ngủ của vợ chồng chủ nhà được thiết kế khép kín với phòng tắm nhỏ bên trong. Phòng ngủ dành cho hai con bố trí bên trong mặt bằng không gian. Hai phòng này cũng có cửa mở ra ban công sau giúp không gian luôn thoáng mát, dễ chịu. Hai phòng sử dụng chung một phòng tắm để tiết kiệm diện tích.
![]() |
| Mặt bằng tầng 2. |
- Mặt bằng tầng 3:
Phòng thờ được thiết kế có cửa mở ra ban công trước nhà nhỏ xinh. Ngay cạnh phòng thờ là kho và phòng giặt. Sân phơi được bố trí phía sau. Gia chủ có thể tận dụng sân phơi để trồng cây cảnh hoặc rau sạch tạo cảnh quan cho ngôi nhà cũng như giúp cải thiện cuộc sống gia đình.
![]() |
| Mặt bằng tầng 3. |
*Về phương án phối cảnh kiến trúc mặt tiền
Mặt tiền ngôi nhà ba tầng KTS thiết kế đơn giản và hiện đại, trẻ trung. Sự kết hợp giữa hai gam màu trung tính đối lập trắng và đen mang lại nét khác biệt và ấn tượng cho không gian sống, phá bỏ hoàn toàn sự đơn điệu vốn có. Trên một số mảng tường KTS còn sử dụng các đường nét kẻ ngang để ngôi nhà thêm đặc sắc, nổi bật.
![]() |
| Mặt tiền nổi bật với sự kết hợp hài hòa giữa hai gam màu đối lập đen - trắng. |
Một số gợi ý về cách bài trí các phòng chức năng:
![]() |
||
|
Phòng khách trang nhã, thanh lịch. (Ảnh minh họa)
|
![]() |
| Phòng ngủ dành cho vợ chồng gia chủ ấm áp. (Ảnh minh họa) |
![]() |
| Phòng ngủ dành cho con gia chủ nhẹ nhàng, dễ thương. (Ảnh minh họa) |
![]() |
| Một thiết kế khác phòng ngủ dành cho con gia chủ. (Ảnh minh họa) |
Trên đây là phương án thiết kế khoa học do KTS cân nhắc, tính toán đưa ra. Chúc gia đình sớm xây được ngôi nhà hiện đại, trẻ trung như ý!
Theo Em đẹp

'1001' cách để bố trí tủ quần áo hợp lý trong nhà bạn
Nếu bạn đang lo tủ quần áo nhà mình sắp sập thì hãy tìm thêm những chỗ để cất trữ quần áo trong nhà.

Khám phá căn bếp vẻn vẹn 5m2 khiến chị em nức nở khen ngợi
Căn bếp nhỏ nhưng ấm cúng và vô cùng xinh xắn với đầy đủ tiện nghi cần thiết, cùng cách bài trí gọn gàng, hợp lý giúp bà nội trợ thỏa sức “tung hoành” trong thế giới riêng của mình.

Căn biệt thự Long Biên sang chảnh trên tạp chí kiến trúc Tây
Nhờ cách thiết kế khéo léo và thông minh đã tạo nên sự sang chảnh quyến rũ cho ngôi nhà.








