Tờ ArchDaily gọi đây là “Ngôi nhà thời gian” và dành khá nhiều lời khen ngợi cho thiết kế thông minh của nó.
![]() |
Căn nhà đặc biệt được tạp chí kiến trúc hàng đầu thế giới ArchDaily nhắc tới lần này nằm trong một con ngõ đông đúc ở quận 3, thành phố Hồ Chí Minh.
![]() |
Giống như mọi ngóc ngách khác trong thành phố sôi động, con ngõ này tập trung khá đông dân cư, những ngôi nhà cao nằm san sát gây cảm giác khá bức bối.
![]() |
Ngôi nhà này là tổ ấm của một gia đình nhiều thế hệ.
![]() |
Chính vì thế, gia chủ muốn không gian sống phải giúp thắt chặt tình cảm giữa các thế hệ trong gia đình.
![]() |
Ngoài ra, sự thông thoáng, yên tĩnh và riêng tư cũng cần được đảm bảo.
![]() |
Các kiến trúc sư đã tạo nên một công trình mà trong nó, ẩn chứa nhiều “ngôi nhà” nhỏ khác.
![]() |
Mỗi “ngôi nhà nhỏ” là tổ ấm của một gia đình nhỏ, tất cả nằm chung, quây quần và được bao bọc bởi một “ngôi nhà lớn” của đại gia đình.
![]() |
Gian bếp chung được đặt ở tầng 2.
![]() |
Các phòng được sắp xếp trải dài theo chiều dọc của căn nhà.
![]() |
Khu vực trung tâm được bố trí giếng trời khá rộng, giúp lưu thông gió trời, không khí và ánh sáng.
![]() |
Vẻ đẹp của ngôi nhà khi nhìn từ khu vực giếng trời.
![]() |
Đây cũng chính là không gian sinh hoạt chung, là cầu nối giữa các phòng, nơi từ phòng này có thể nhìn sang phòng khác,...
![]() |
...giúp các thành viên trong gia đình dễ dàng kết nối với nhau.
![]() |
Tầng 1 không chia phòng mà để thành một sàn phẳng làm sân chơi chung cho trẻ em, đồng thời là nơi thư giãn, chuyện trò cho người lớn.
![]() |
Màu sơn trắng chủ đạo vừa tạo cảm giác rộng rãi cho công trình, vừa tạo nét thẩm mỹ và hiện đại.
![]() |
Khu vực cầu thang.
![]() |
Giếng trời.
![]() |
Sân thượng trở thành nơi nghỉ ngơi lý tưởng.
![]() |
Phòng ngủ đơn giản.
![]() |
Phòng ngủ ấm cúng của người già
![]() |
Ở ngôi nhà này, người ta có thể dễ dàng nhận thấy những đường nét hiện đại quyện hòa với truyền thống vốn có,...
![]() |
...tạo nên một tổng thể đẹp mắt, khó tách rời.
![]() |
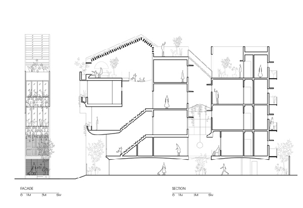
Bản vẽ mặt cắt dọc của ngôi nhà.
Theo Dân Việt

Nhà phố Hà Nội mang trời xanh vào từng góc nhỏ
Cây xanh, giếng trời, hành lang thư thái là những thứ khiến bất cứ ai một lần ghé qua cũng thêm yêu ngôi nhà phố này.

Nhà cấp 4 thoáng rộng đẹp chẳng kém biệt thự xa hoa
Thiết kế thêm một tầng hầm giúp ngôi nhà lúc nào cũng thoáng mát, kể cả trong mùa hè nóng nực.

Cách trang trí nhà đẹp tinh khôi với cúc họa mi
Mùa cúc họa mi đang gây xốn xang khắp phố phường Hà Nội. Bạn hãy trang trí nhà thêm rạng rỡ, xinh tươi và lãng mạn với loài hoa đáng yêu này.






















