Ngôi nhà trong ngõ được KTS thiết kế phù hợp với nhu cầu và khả năng kinh tế của vợ chồng trẻ.
Kính gửi chuyên mục Nhà đẹp!
Tôi mới mua một mảnh đất trong ngõ diện tích 4,5m x 8,6m. Tôi muốn xây một căn nhà nhỏ cho vợ chồng tôi ở. Vợ chồng tôi mới cưới dự định sẽ sinh trong năm sau. Kinh phí tôi chuẩn bị được không nhiều chỉ hơn 500 triệu đồng một chút nên tôi chỉ muốn xây vừa đủ không gian cho gia đình nhỏ của tôi sống. Tôi dự định phân chia các phòng chức năng như sau:
- Tầng 1 gồm có: Phòng khách, phòng bếp và bàn ăn, không cần thiết kế chỗ để xe vì nhà tôi trong ngõ nên gửi xe bên ngoài tiện hơn.
- Tầng 2 gồm có: Hai phòng ngủ và một phòng tắm.
- Tầng tum gồm có: Phòng thờ và sân phơi.
Mong Kiến trúc sư (KTS) đưa ra phương án thiết kế phù hợp với mảnh đất và số tiền vợ chồng tôi có. Tôi cảm ơn rất nhiều!
(Bích Phương)
Trả lời:
Dựa trên thông tin chủ nhà đưa ra thì ngôi nhà của gia đình nằm trong ngõ. Vì vậy, khi thiết kế KTS cần cân nhắc để các không gian không bị tối hay bí. Tuy nhiên, với số tiền 500 triệu đồng mà ngôi nhà trong ngõ việc vận chuyển vật liệu khó khăn sẽ bị đội chi phí lên. Nên khi thuê người thi công, gia đình cần tính toán hết sức cẩn thận mới không bị phát sinh.
Tổng chi phí dự tính là 589 triệu đồng. Cụ thể từng hạng mục như sau:
Tổng chi phí dự tính là 589 triệu đồng. Cụ thể từng hạng mục như sau:
| STT | Hạng mục công trình | Chi phí (Đơn vị: Triệu đồng) |
| 1 | Phần thô | 380 |
| 2 | Gạch | 20 |
| 3 | Đá granit | 20 |
| 4 | Cửa | 25 |
| 5 | Hệ thống điện nước | 24 |
| 6 | Sơn nhà | 25 |
| 7 | Nhôm kính | 18 |
| 8 | Tủ bếp và bàn ăn | 20 |
| 9 | Giường ngủ ba phòng | 16 |
| 10 | Tủ quần áo | 18 |
| 11 | Sofa và tủ phòng khách | 20 |
| 12 | Các chi phí phát sinh khác | 3 |
Tổng: 589 (triệu đồng)
Dưới đây là phương án thiết kế do KTS Lý Minh Kha đưa ra:
*Về phương án thiết kế mặt bằng
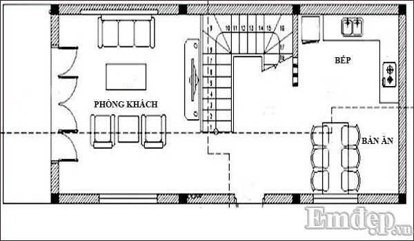
- Mặt bằng tầng 1:
Tầng 1 phía trước là phòng khách, bên trong là không gian bếp và bàn ăn. Vì diện tích tương đối nhỏ nên KTS không trừ cho không gian sân. Tuy nhiên, gia đình có thể tận dụng khoảng diện tích đối diện thang để tạo tiểu cảnh xanh để không gian sống dễ chịu hơn. Vì nhà nhỏ phòng bếp bắt buộc phải lắp đặt các thiết bị thông gió, hút mùi để hạn chế sức nóng và mùi thức ăn. Bên cạnh đó, KTS cũng thiết kế các cửa sổ lớn để không gian sáng hơn.
![]() |
|
Mặt bằng tầng 1 |
- Mặt bằng tầng 2:
Tầng 2 là không gian nghỉ ngơi cho vợ chồng gia chủ. Phòng ngủ của vợ chồng son sẽ nằm phía trước mặt bằng. KTS thiết kế ban công nhỏ trước phòng để chốn riêng tư của hai vợ chồng thêm thoáng mát và lãng mạn. Phòng ngủ bên trong sẽ dành cho con của đôi vợ chồng sau này. Đối diện thang KTS tận dụng thiết kế phòng tắm nhỏ.
![]() |
|
Mặt bằng tầng 2. |
- Mặt bằng tầng tum
Tầng tum có một phòng chính dành cho không gian thờ cúng của gia đình. Phía trước là sân phơi. Đối diện sảnh thang là phòng giặt đồ nhỏ.
![]() |
|
Mặt bằng tầng tum. |
*Về phương án phối cảnh kiến trúc mặt tiền
Nhà gia chủ có diện tích không lớn nên KTS chọn gam màu sáng để mang lại hiệu ứng thị giác giúp không gian trông rộng và thoáng hơn. Việc sử dụng cửa kính cũng là lựa chọn hợp lý để các phòng chức năng lấy được tối đa ánh sáng tự nhiên. Hơn nữa, việc sử dụng cửa kính cũng tiết kiệm chi phí hơn rất nhiều so với việc dùng cửa gỗ. Sân thượng phía trên tầng tum đủ để chủ nhà tạo được vườn cây cảnh hoặc vườn rau nhỏ vừa tô điểm cho không gian sống vừa đảm bảo sức khỏe cho gia đình.
![]() |
|
Mặt tiền ngôi nhà hai tầng được thiết kế đơn giản, hiện đại và tiết kiệm chi phí. |
Một số gợi ý về cách bài trí các phòng chức năng
![]() |
|
Phòng khách nhỏ xinh xắn, sang trọng. (Ảnh minh họa) |
![]() |
|
Phòng ăn ấm cúng với tone vàng làm điểm nhấn trẻ trung. (Ảnh minh họa) |
![]() |
|
Phòng ngủ dành cho vợ chồng tuy nhỏ nhưng sắp xếp khoa học, tiết kiệm diện tích. (Ảnh minh họa) |
![]() |
|
Phòng ngủ dành cho con gia chủ sau này. (Ảnh minh họa) |
![]() |
|
Một thiết kế khác phòng ngủ dành cho con chủ nhà. (Ảnh minh họa) |
Trên đây là phương án tư vấn thiết kế do KTS tính toán khoa học đưa ra. Chúc gia đình luôn gặp may mắn và tổ ấm nhỏ tràn ngập niềm vui!
Theo Em đẹp

Ý tưởng trang trí phòng bếp siêu sang trọng
Một số ý tưởng trang trí với những điểm nhấn bằng kim loại đồng sẽ giúp phòng bếp nhà bạn trở nên quyến rũ hơn.

Học người Nhật bố trí căn hộ thông minh dành riêng cho những gia đình có trẻ nhỏ
Kiến trúc sư người Nhật Bản đã cải tạo căn hộ cũ trở thành một tổ ấm tuyệt vời dành cho gia đình có trẻ nhỏ.

Căn nhà mặt hướng Tây mà không lo nóng ở Nha Trang
Nhờ thiết kế mặt tiền độc đáo dạng như rèm chống nắng và bao quanh bởi cây xanh, căn nhà dưới đây có mặt quay về hướng Tây nhưng vẫn không lo bị nóng.








