Gia đình chúng tôi sống hướng nội. Chúng tôi muốn tận hưởng sự riêng tư và ít khi tiếp khách. Chúng tôi không muốn bất cứ ai từ bên ngoài có thể nhìn thấy sinh hoạt của gia đình. Vì vậy, chúng tôi muốn tách phòng khách ra khỏi khu vực sinh hoạt chung của gia đình”, đây là yêu cầu của gia chủ đối với đơn vị thiết kế biệt thự hiện đại 2 tầng này. 

{keywords}
Biệt thự này có diện tích 1.100m2. 

Sau cuộc thảo luận ban đầu đó, kiến trúc sư tập trung vào các yêu cầu của gia chủ để đưa ra thiết kế độc đáo cho công trình. Các yêu cầu phân vùng không gian giữa khu vực tiếp khách và riêng tư được lưu ý. Bố cục biệt thự hình chữ U được cho là giải pháp tốt nhất, có lối vào dành cho khách riêng biệt. 

{keywords}
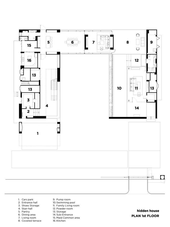
Mặt bằng chi tiết tầng 1. 
{keywords}
Mặt tiền biệt thự là những bức tường kiên cố. 
{keywords}
Thiết kế này mang đến sự riêng tư cho gia chủ. 
{keywords}
Bên trong các bức tường kiên cố mặt tiền là không gian sinh hoạt chung của gia đình. 
{keywords}
Phòng khách nằm tách biệt khỏi các không gian sinh hoạt chung. 
{keywords}
Phòng ăn được thiết kế rất thoáng đãng. 
{keywords}
Nhà bếp sang trọng với gam màu trắng. 

Sân thượng có mái che hoạt động như một không gian chuyển tiếp và vùng đệm giữa khu vực sinh hoạt chính và gia đình. Hồ bơi nằm ở phía sau bức tường màu xám có tác dụng tạo khoảng cách giữa các khu vực tiếp khách và riêng tư của gia đình. 

Vì vậy, nếu khu vực sinh hoạt chính được sử dụng cho một chức năng, phòng khách gia đình có thể được sử dụng mà không bị xáo trộn và vẫn riêng tư. Các bức tường kiên cố được sử dụng để che chắn các không gian bên trong với nhà hàng xóm và mang lại sự riêng tư. 

{keywords}
Không gian sinh hoạt chung của gia đình. 
{keywords}
Hồ bơi được bố trí ngoài phòng sinh hoạt chung của gia đình. 
{keywords}
Phía sau nhà là khoảng sân vườn rộng lớn. 

Phần lớn các không gian của biệt thự có được sự riêng tư nhờ các bức tường bên ngoài kiên cố. Một trong những điểm nhấn của biệt thự này là cầu thang chính được điêu khắc, nó được xem như là “cầu thang lên thiên đường”, giống như một tác phẩm nghệ thuật. 

Hệ thống lọc ánh sáng từ cửa sổ trần mỏng và trần thon phía trên tạo ra sự thay đổi ánh sáng giữa ngày và đêm. Ánh sáng thay đổi thổi sức sống vào không gian, giống như những vũ công đang nhảy theo nhịp điệu của âm nhạc.

{keywords}
Mặt bằng chi tiết tầng 2 của biệt thự. 
{keywords}
Cầu thang trở thành điểm nhấn của biệt thự. 
{keywords}
Cầu thang được thiết kế như một tác phẩm điêu khắc. 
{keywords}
Tầng 2 được bố trí 5 phòng ngủ. 
{keywords}
Không gian thư giãn, đọc sách trên tầng 2. 
{keywords}
Phòng vệ sinh trong phòng ngủ lớn. 
Biệt thự hiện đại 3 tầng ở Nha Trang che nắng bằng 'rèm' dây leo

Biệt thự hiện đại 3 tầng ở Nha Trang che nắng bằng 'rèm' dây leo

Bên cạnh các giải pháp giúp đối lưu không khí giữa trong và ngoài nhà, biệt thự hiện đại 3 tầng này còn gây chú ý nhờ bức rèm che nắng bằng dây leo.  

Quang Đăng (Dịch)