Nằm trong một khuôn viên xanh mát, đa chức năng với các biệt thự, khu vui chơi giải trí, sân tennis, quán cà phê, hồ bơi và khu vườn, biệt thự hiện đại 3 tầng với mái gấp này có thiết kế thông minh dựa trên hai phần: Phần được xây dựng kiên cố làm tòa nhà chính và phần tiền chế như hiên.

{keywords}
Vị trí biệt thự nằm ngay góc của khu đất thuộc một quận vùng ven Sài Gòn. 
{keywords}
Phần lớn diện tích đất được sử dụng làm sân vườn với nhiều loại cây cảnh. 
{keywords}
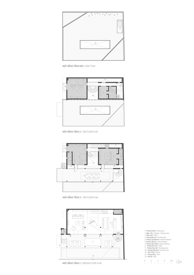
Mặt bằng chi tiết các tầng của biệt thự. 
{keywords}
Thiết kế mặt đứng và mặt cắt của công trình. 

Mái ngói gấp nối hai phần này với nhau, giúp giảm chiều cao công trình, che chắn ánh nắng từ phía Đông, hướng toàn bộ không gian sống về phía sân vườn và hồ bơi.

{keywords}
Thiết kế mái gấp độc đáo. 
{keywords}
Biệt thự được chia làm 2 phần: Phần xây dựng kiên cố và hàng hiên. 
{keywords}
Mái gấp giúp che chắn ánh nắng từ hướng Đông...
{keywords}
...đồng thời hướng không gian sống về phía hồ bơi và sân vườn. 
{keywords}
Không gian tại tầng 1 của biệt thự. 
{keywords}
Nhà bếp và bàn ăn tràn ngập ánh sáng tự nhiên. 
{keywords}
Không gian bếp và bàn ăn có tầm nhìn ra hồ bơi.
{keywords}
Các không gian chức năng bố trí tại tầng 1 được thiết kế liên thông với nhau. 
{keywords}
Cửa ngăn cách giữa không gian trong nhà và hồ bơi có thể đóng mở linh hoạt. 
{keywords}
Cầu thang xoắn ốc giúp lưu thông từ các phòng ngủ trên tầng 2 xuống thằng hồ bơi. 
{keywords}
Cầu thang được bố trí ở khoảng thông tầng, vị trí trung tâm của biệt thự. 
{keywords}
Bộ bàn ghế lớn được đặt ở khu vực ngoài trời của tầng 2. 
{keywords}
Về đâm, nơi đây sẽ trở thành không gian thư giãn khá thú vị.

Toàn bộ mặt ngoài của biệt thự này được ốp bằng đá ong, kết hợp với mái ngói làm cho công trình có tính thẩm mỹ và vững chãi hơn. Thiết kế này tạo ra không gian rất lý tưởng cho gia chủ trong những buổi thư giãn cuối tuần riêng tư.

{keywords}
Mặt ngoài của biệt thự được ốp bằng đá ong. 
Biệt thự hiện đại 3 tầng đẹp ngỡ ngàng với ý tưởng thiết kế từ bụi tre

Biệt thự hiện đại 3 tầng đẹp ngỡ ngàng với ý tưởng thiết kế từ bụi tre

Trong văn hoá của người Việt, cây tre rất gần gũi, bình dị nhưng cũng rất duyên dáng. Hình ảnh những cây tre mọc theo bụi, thẳng đứng và đều đặn đã trở thành ý tưởng thiết kế biệt thự hiện đại này.  

Quang Đăng (Dịch)