Đối với đơn vị thiết kế biệt thự này, mỗi công trình là một quá trình sáng tạo về ý tưởng, giải pháp kỹ thuật và hài hòa với nhu cầu của gia chủ. Trong đó, việc tìm kiếm ý tưởng thiết kế là bước đầu tiên và luôn được khơi dậy từ những nét đặc trưng của văn hóa địa phương, những điểm độc đáo của môi trường tự nhiên.

{keywords}
Biệt thự hiện đại 3 tầng này toạ lạc trong một khu đô thị ở huyện Văn Giang, tỉnh Hưng Yên.

Cảm hứng để thiết kế biệt thự hiện đại này cũng đến từ sự bình dị, nhẹ nhàng và duyên dáng nhưng cũng rất đặc biệt của bụi tre bên cạnh. 

Trong văn hóa Việt Nam, cây tre rất gần gũi, chúng mọc theo bụi gồm nhiều thân thẳng đứng, đều đặn, đây là ý tưởng chủ đạo để thiết kế nên ngôi biệt thự đơn lập này.

{keywords}
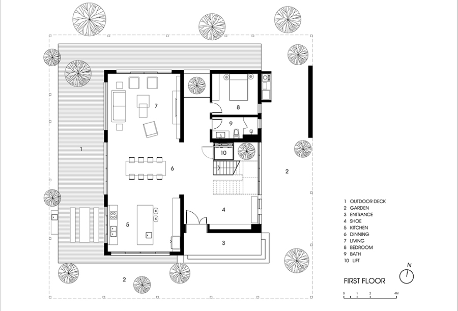
Mặt bằng chi tiết tầng 1. 
{keywords}
Lối vào nhà với bậc tam cấp. 
{keywords}
Mái hiên bên hông biệt thự. Phía trên là những lam nhựa lọi thép. 
{keywords}
Hình ảnh những thanh lam thẳng tắp, đều đặn xuất hiện ở nhiều nơi của công trình. 
{keywords}
Bàn ăn lớn được đặt ở vị trí trung tâm của tầng 1. 
{keywords}
Bàn ăn này còn làm nhiệm vụ phân chia không gian phòng khách và nhà bếp. 
{keywords}
Các không gian ở tầng 1 đều tràn ngập ánh sáng tự nhiên. 
{keywords}
Gỗ ốp dọc hai bên thông tầng cũng được thiết kế như những đốt trên thân tre.
{keywords}
Kế bên cửa chính của ngôi nhà là hệ tủ giày khá lớn. 

Hình thức thanh lam trong kiến ​​trúc hiện đại đã rất phổ biến nhưng những thanh lam trong công trình này có hình ảnh cây tre và được kiến trúc sư thể hiện qua các chất liệu khác nhau như thanh bê tông trong bồn cây, thanh sắt tràn viền ở ban công, lam nhựa lõi thép ở mái hiên hay nan tre ở sàn ngoài trời.

{keywords}
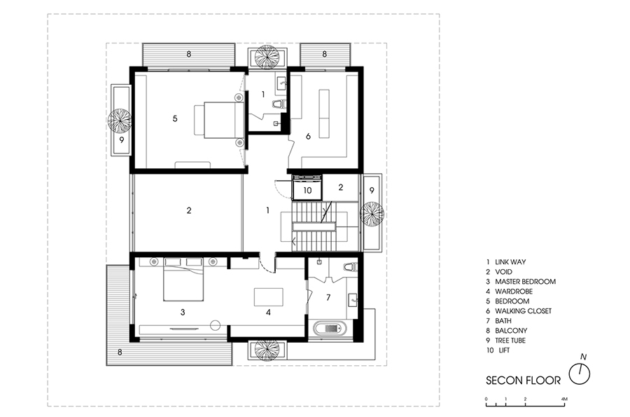
Trên tầng 2, kiến trúc sư bố trí 2 phòng ngủ.
{keywords}
Cầu thang dư thừa ánh sáng tự nhiên nhờ các cửa sổ kính lớn thiết kế chạy dọc ngôi nhà.
{keywords}
Phòng ngủ chính có tầm nhìn vô cùng thoáng đãng. 
{keywords}
Phòng tắm của phòng ngủ chính. 
{keywords}
Phòng ngủ còn lại ở tầng 2. 
{keywords}
Phòng vệ sinh trong phòng ngủ này.

Không chỉ dừng lại ở ngoại thất, hình ảnh những nan tre còn được đưa vào thiết kế nội thất qua cửa chính liền kề tủ giày, đến vách ốp dọc hai bên thông tầng và phòng ngủ, đến những ô trần tạo không gian, hay những mảng vật liệu lớn như gạch men ở tầng trệt, sàn gỗ tự nhiên ở tầng trên, tất cả đều được kiến trúc sư sử dụng ngôn ngữ nan theo những cách khác nhau. Tất cả tạo nên một ngôn ngữ kiến ​​trúc độc đáo và đồng nhất thông qua những vật liệu tưởng chừng như bình thường nhưng lại rất gần gũi, thân quen.

{keywords}
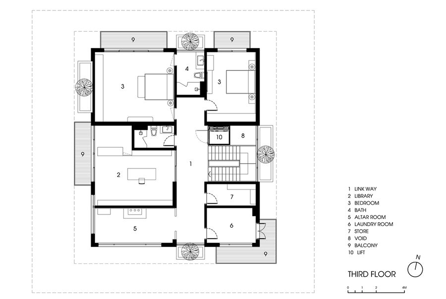
Trên tầng 3, kiến trúc sư bố trí 2 phòng ngủ nhỏ. Ngoài ra còn có phòng đọc sách và phòng thờ. 
{keywords}
Thiết kế các thanh sắt tràn viền ở ban công cũng được lấy ý tưởng từ bụi tre. 
{keywords}
Một góc bên hông nhìn ra phía trước biệt thự. 
{keywords}
Diện tích xây dựng 474m2, công trình được hoàn thành vào năm 2021.

Những ý tưởng thiết kế gần gũi với thiên nhiên, hài hòa với môi trường xung quanh là điều vô cùng đáng giá. Cùng với sự đồng điệu và thống nhất trong ngôn ngữ thiết kế cũng là quan điểm mà đơn vị thiết kế theo đuổi khi thực hiện mỗi công trình.

Biệt thự hiện đại ở ‘khu nhà giàu’ TP.HCM xoá nhoà khoảng cách trong và ngoài

Biệt thự hiện đại ở ‘khu nhà giàu’ TP.HCM xoá nhoà khoảng cách trong và ngoài

Với thiết kế những bức tường bằng kính linh hoạt, không gian trong và ngoài ngôi biệt thự hiện đại ở “khu nhà giàu” này dường như đã bị xoá nhoà. 

Quang Đăng (Dịch)