Đơn vị thiết kế biệt thự hiện đại ba tầng này cảm thấy rất thú vị khi ghi thăm lại công trình sau vài năm đưa vào sử dụng, khi các không gian đã phục vụ trọn vẹn đời sống của gia chủ trong từng hơi thở.

Ngôi nhà là cách tiếp cận kiến ​​trúc nhiệt đới đương đại tiếp nối từ nền tảng kiến ​​trúc nhiệt đới bản địa truyền thống trong bối cảnh đô thị hoá. 

{keywords}
Nhìn từ bên ngoài đã thấy biệt thự này có nhiều mảng xanh. 

Kiến trúc sư sử dụng những khoảng không gian lớn để tự do sắp xếp nội thất, sự kết nối giữa các thành viên trong nhà, sự kết nối giữa con người với ánh sáng tự nhiên và thiên nhiên từ bên ngoài và bên trong. 

Các không gian về chiều cao và không gian trải rộng trên mặt bằng cho phép đối lưu không khí và thông gió tự nhiên tối đa trong môi trường nhiệt đới ẩm, thông qua hệ thống lam gió và các ô cửa mở tối đa.

{keywords}
Mặt bằng chi tiết tầng 1. 
{keywords}
Mặt tiền của biệt thự.
{keywords}
Đá tự nhiên là vật liệu chính để xây hàng rào trước nhà. 
{keywords}
Từ cổng đi vào, bên trái là khoảng sân vườn.  
{keywords}
Bên phải là công trình nhà ở. 

Song song với việc thông gió là giải pháp hạn chế bức xạ nhiệt mặt trời khi mặt tiền của ngôi nhà chịu tác động trực tiếp của bức xạ nhiệt quanh năm. Thiết kế sử dụng giàn dây 3D cách điệu từ chi tiết lam chắn nắng trong nhà truyền thống, tạo thành khung giàn cho dây leo phát triển như một bức rèm cây xanh. 

Vật liệu được lựa chọn để xây dựng là những loại phổ biến trên thị trường kết hợp với vật liệu tự nhiên sẵn có tại địa phương như gỗ, đá tự nhiên, hoặc vật liệu thủ công như đá mài.

{keywords}
Hệ thống cửa ở phòng khách được thiết kế đóng mở linh hoạt. 
{keywords}
Thiết kế này giúp cho không gian phòng khách đón nhiều ánh sáng tự nhiên. 

Đơn vị thiết kế rất thích thú khi nhận được những lời cảm nhận từ bé Bo, con gái của chủ nhà. Cô bé cho biết, sau một năm sống trong ngôi nhà này, cô và gia đình đang tận hưởng một cuộc sống rất yên bình và nhẹ nhàng, tránh xa những xô bồ, ồn ào của thành phố.

Cô bé cho rằng, ngôi nhà này là công trình kiến ​​trúc độc đáo mà bố mẹ đã tặng cho cô, chị gái và chú chó nhỏ sau nhiều năm làm việc chăm chỉ. 

Chỉ cần đứng ngoài nhìn vào, ai cũng có thể biết được ngôi nhà này "xanh" đến mức nào. Phòng khách liên thông với phòng ăn và bếp cùng với ánh đèn vàng dịu chiếu vào phòng mỗi sáng sớm tạo chiều sâu và sự ấm cúng. Nhà bếp là nơi yêu thích của cô, mẹ, chị gái và cả chú chó tinh nghịch. 

{keywords}
Cầu thang được thiết kế trải dài và sát tường ngôi nhà. 
{keywords}
Mặt bằng chi tiết tầng 2. 
{keywords}
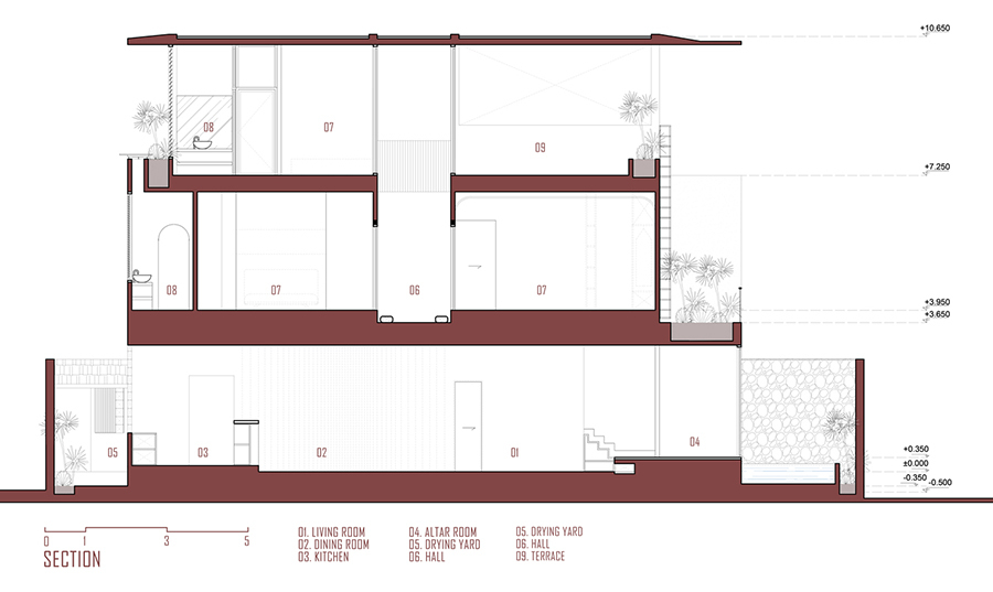
Mặt cắt của công trình. 
{keywords}
Hành lang ở giữa hai phòng ngủ trên tầng 2. 
{keywords}
Phòng ngủ tràn ngập ánh sáng tự nhiên. 
{keywords}
Cả hai phòng ngủ đều có tầm nhìn thoáng đãng. 
{keywords}
Nhờ thiết kế gạch kính, nhà vệ sinh tràn ngập ánh sáng tự nhiên...
{keywords}
... nhưng vẫn giữ được sự riêng tư, kín đáo. 

Bước lên tầng 2 là phòng ngủ của gia đình. Hai phòng ngủ của bố mẹ và hai chị em được thông nhau bằng lối đi ở giữa để gắn kết từng thành viên trong gia đình. Mỗi sáng sớm khi những tia nắng chiếu vào phòng, cô thức dậy và sẵn sàng bắt đầu một ngày mới. 

“Đầu tiên, tôi sẽ tưới vườn ở hành lang giữa hai phòng và vườn trên sân thượng. Sau đó, tôi sẽ dọn dẹp nhà cửa và cuối cùng là xuống nhà ăn sáng cùng gia đình thân yêu trong ngôi nhà mà trước đây tôi hằng mơ ước. Tôi thực sự dành tình cảm đặc biệt cho nơi mình đang sống và tin chắc rằng đây sẽ là ngôi nhà mang đến cho tôi một tuổi thơ trọn vẹn nhất, hạnh phúc nhất”, bé Bo chia sẻ. 

{keywords}
Giàn dây leo như bức rèm che nắng cho ngôi nhà. 
{keywords}
Để giảm bức xạ nhiệt, nhiều mảng xanh được bố trí quanh ngôi nhà. 
Biệt thự hiện đại 3 tầng có mái gấp độc đáo ở vùng ven Sài Gòn

Biệt thự hiện đại 3 tầng có mái gấp độc đáo ở vùng ven Sài Gòn

Biệt thự hiện đại 3 tầng này có thiết kế thông minh với phần xây dựng kiên cố và hàng hiên. Hai không gian này được kết nối với nhau bằng mái ngói gấp độc đáo.

Quang Đăng (Dịch)