Đây là biệt thự đơn lập nằm trong khu dân cư Thảo Điền, TP.Thủ Đức, TP.HCM. Ngôi nhà như một ốc đảo, nằm gần trung tâm thành phố đồng thời mang đến cho gia chủ một không gian giải trí và sinh hoạt rộng rãi, riêng tư. 

Biệt thự này được thiết kế theo phong cách hiện đại, tối giản nhưng vẫn giữ được sự ấm áp thông qua việc lựa chọn vật liệu.

{keywords}
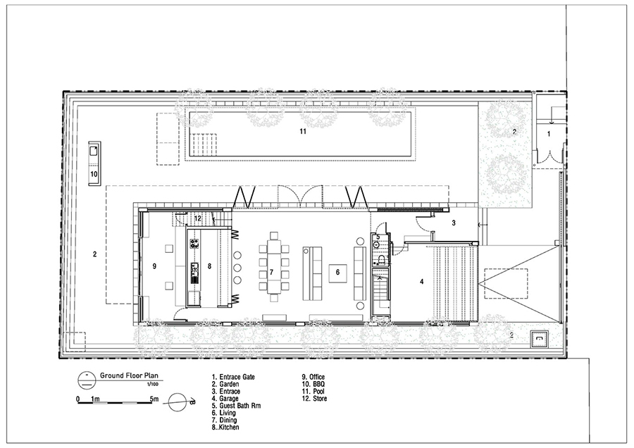
Mặt bằng chi tiết tầng trệt của biệt thự. 
{keywords}
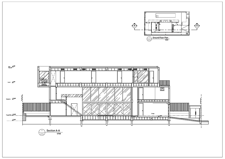
Mặt cắt công trình. 

Biệt thự được tạo thành từ hai khối chính xếp chồng lên nhau. Khối dưới là không gian phòng khách có chiều cao gấp đôi và nhà bếp kín bên trong ốp gỗ cẩm lai, còn phòng gia đình trên gác lửng. 

{keywords}
Về hình thái kiến trúc, biệt thự được xây từ hai khối xếp chồng lên nhau. 
{keywords}
Có khoảng sân rộng rãi.

Tường nhà bếp có thể mở ra toàn bộ theo chiều ngang để biến nơi đây thành một nhà bếp mở. Chiều cao trần nhà 5m phù hợp với bức tường kính suốt từ trần đến sàn, mở ra sân trong của hồ bơi. 

Không gian phòng khách lớn được thiết kế để trở thành một khu giải trí với những bức tường cao độc đáo, như một tác phẩm nghệ thuật lớn. 

{keywords}
Không gian phòng khách rộng lớn. 
{keywords}
Tường kính từ sàn lên trần mang đến nhiều ánh sáng tự nhiên và tầm nhìn thoáng đãng ra hồ bơi. 
{keywords}
Nhà bếp có không gian mở. 

Các bức tường kính linh hoạt làm xóa nhoà khoảng cách giữa không gian trong nhà và ngoài trời, đồng thời mang đến nhiều ánh sáng phục vụ nhu cầu giải trí.

Ở tầng trệt còn có một phòng làm việc của gia chủ, nằm kín đáo cách xa phòng khách phía sau nhà bếp nhưng có tầm nhìn ra sân sau rất thơ mộng và lối vào bằng kính có thể mở được toàn bộ chiều dài. Thiết kế này mang đến cho sân sau một không gian rộng rãi để đặt bàn ghế ngoài trời, với bếp nhỏ ngoài trời phục vụ cho việc nấu nướng và ăn uống ngoài trời.

{keywords}
Phòng làm việc có tầm nhìn ra sân. 
{keywords}
Phòng sinh hoạt gia đình được bố trí ở tầng lửng. 

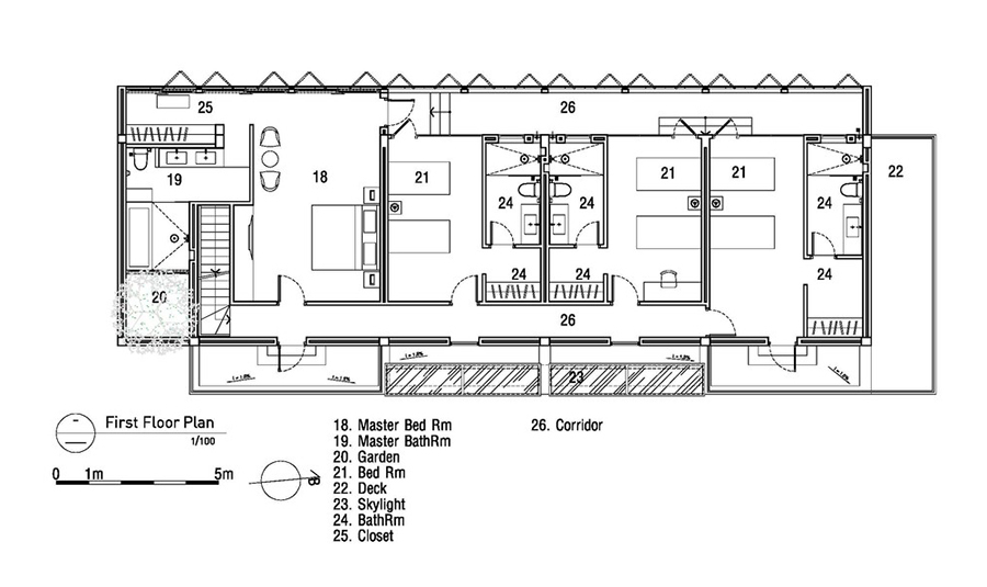
Ở tầng trên, 4 phòng ngủ có phòng tắm riêng được bố trí, mỗi phòng đều có cửa sổ bằng gỗ tràn ngập ánh sáng tư nhiên và có tầm nhìn ra sân hồ bơi. 

{keywords}
Mặt bằng chi tiết tầng 1. Nơi đây được bố trí 4 phòng ngủ. 
{keywords}
Phòng tắm trong phòng ngủ lớn. 
{keywords}
Bên trong phòng tắm được bố trí gọn gàng. 
{keywords}
Góc đọc sách trên tầng 1.
{keywords}
Hệ thống cửa sổ linh hoạt. 

Phòng tắm chính được thiết kế thêm một khu vườn đá ngoài trời. Sự phân định này mang đến sự riêng tư cho gia chủ, tách biệt với không gian bên ngoài và giải trí ở tầng trệt.

Phòng gia đình, nằm trên diện tích nhà bếp, cung cấp một không gian mở nhưng kín đáo cho gia đình nghỉ ngơi và thư giãn.

{keywords}
Khoảng sân lớn và có bếp nhỏ phù hợp tổ chức các hoạt động nấu nướng ngoài trời. 

Hồ bơi dài 15m đóng vai trò như một tiểu cảnh đẹp cho khoảng sân và không gian phòng khách. Với thiết kế này, gia chủ sẽ được trải nghiệm về thời gian khi ánh sáng ban ngày tắt dần và đèn hồ bơi được bật sáng, khi đó hồ bơi như viên ngọc màu xanh lam được tô điểm dưới ánh đèn. 

{keywords}
Hệ thống chiếu sáng cảnh quan ngoài trời được thiết kế tối ưu nhằm tận dụng tối đa không gian ngoài trời, kể cả vào ban đêm.
{keywords}
Hồ bơi dài 15m.
{keywords}
Một góc hồ bơi về đêm. 
Biệt thự thiết kế vừa hiện đại vừa thực dụng với vườn rau trên sân thượng

Biệt thự thiết kế vừa hiện đại vừa thực dụng với vườn rau trên sân thượng

Mục tiêu của kiến trúc sư khi thiết kế biệt thự này đó là tạo ra các không gian thân thiện với môi trường, trong đó có cả một vườn rau sạch trên sân thượng. 

Quang Đăng (Dịch)