Trong những năm gần đây, những tác động của biến đổi khí hậu đối với môi trường sống con người là vấn đề được quan tâm nhất. Là những người làm nghề thiết kế, các kiến trúc sư của công trình này hiểu rằng họ cần phải hành động để góp phần giảm thiểu tác động đến môi trường thông qua các sản phẩm của họ.

Tác động của biến đổi khí hậu là vô cùng nghiêm trọng, với nhiệt độ và mực nước biển dâng cao qua từng năm. Trong năm 2020, Việt Nam hứng chịu 13 cơn bão, còn Philippines có 22 cơn bão, trong đó có những cơn bão có sức tàn phá mạnh. 

{keywords}
Khu vực bố trí mảng xanh và giải pháp thông gió của công trình.

Ngoài ra còn có nhiều thảm họa với sức tàn phá lớn như lũ lụt, sạt lở đất… Tuy nhiên, hầu hết người dân ở các nước đang phát triển như Việt Nam không thừa nhận mức độ nghiêm trọng của biến đổi khí hậu.

Có nhiều lý do dẫn đến tình trạng biến đổi khí hậu nghiêm trọng ở các nước đang phát triển. Cùng với nạn phá rừng, còn có El Nino cũng gây ra bão, lũ, sạt lở đất.

{keywords}
Thiết kế mặt tiền của biệt thự. 

kiến ​​trúc sư, những người thiết kế công trình này mong muốn thay đổi nhận thức của mọi người, đồng thời đưa ra những giải pháp hạn chế tác động tiêu cực đến môi trường. 

Hơn nữa, các kiến trúc sư cũng muốn truyền cảm hứng cho các đồng nghiệp khác để tạo ra một môi trường sống tốt hơn. Biệt thự này là một trong những dự án của nhóm kiến trúc sư thể hiện niềm tin đó.

{keywords}
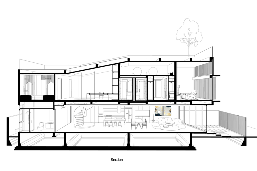
Mặt cắt công trình. 

Ngôi nhà có tổng diện tích 250m2 toạ lạc tại TP.Đà Nẵng này được thiết kế dành cho một cặp vợ chồng trẻ và hai con nhỏ. Mục tiêu của các kiến trúc sư là tạo ra ngôi nhà thân thiện với môi trường nhất. Ngôi nhà này tận dụng các nguồn năng lượng từ thiên nhiên và có giải pháp giúp tiết kiệm tài nguyên nước.

{keywords}
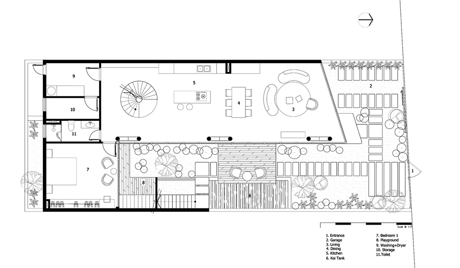
Mặt bằng chi tiết tầng trệt. 

Tầng trệt là nơi bố trí phòng khách, nhà bếp, phòng ngủ cho khách, nhà kho và phòng giặt. Nhà bếp và phòng khách liên thông với nhau nhằm tạo ra không gian rộng và linh hoạt cũng như giảm diện tích xây dựng, dành nhiều không gian cho sân vườn. Tất cả các phòng đều hướng ra vườn qua cửa sổ trượt lớn trong suốt, giúp cho ngôi nhà có sự thông thoáng tốt nhất.

{keywords}
Mặt tiền của biệt thự. 
{keywords}
Phía sau cánh cổng là khoảng sân trước rộng rãi. 
{keywords}
Phòng khách và nhà bếp liên thông với nhau. 
{keywords}
Cả nhà bếp và phòng khách đều có tầm nhìn hướng ra sân vườn. 
{keywords}
Nội thất của biệt thự được thiết kế theo phong cách hiện đại. 
{keywords}
Bếp đảo kết hợp với bàn ăn. 
{keywords}
Cuối nhà bếp là nơi bố trí cầu thang xoắn ốc đi lên tầng 1.
{keywords}
Hiệu ứng ánh sáng vào ban đêm làm cho không gian sân vườn thêm thơ mộng. 

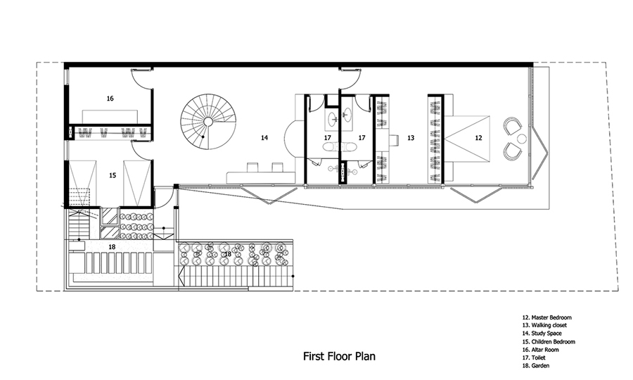
Phòng thờ, phòng làm việc và 2 phòng ngủ được bố trí ở tầng 1 của ngôi nhà và tất cả đều hướng ra vườn. Kiến trúc sư trang bị cửa sổ trượt để tối đa hóa luồng không khí, đặc biệt là không khí từ biển gần đó. Sự khác biệt giữa tầng 1 và tầng trệt  đó là tầng 1 được trang bị cửa sổ chớp. Điều này giúp giảm bớt ánh nắng khi cần thiết.

{keywords}
Trên tầng 1 được bố trí 2 phòng ngủ. 
{keywords}
Vừa lên cầu thang tầng 1 là không gian học tập của hai cậu con trai. 
{keywords}
Khu vực cầu thang được thiết kế trở thành điểm nhấn ở tầng 1.  
{keywords}
Phòng ngủ lớn ở tầng 1 có tầm nhìn thoáng đãng.

Trên sân thượng có một sân chơi nhỏ và một vườn rau sạch đủ cung ứng cho nhu cầu sử dụng hàng ngày. Vườn rau sạch sử dụng hóa chất không độc hại, an toàn cho người và vật nuôi. 

Đặc biệt, vườn rau này sử dụng một hệ thống tưới nước tuần hoàn tự động kiểm soát nhiệt độ và độ ẩm, tích trữ và tận dụng nước mưa. 

{keywords}
Phần lớn diện tích của sân thượng được dùng để trồng rau. 
{keywords}
Vườn rau sử dụng hoá chất không độc hại, an toàn cho người và vật nuôi. 
{keywords}
Mô tả hệ thống tưới nước tuần hoàn tự động và tận dụng nước mưa để tưới rau và cây xanh ở sân vườn. 

Sau 4 năm thực hiện nhiều công trình, các kiến trúc sư nhận ra rằng, trên cùng một nền bê tông thì khu vực nào có trồng cây sẽ vững chắc hơn các khu vực khác. Những khu vực không trồng cây dễ có các vết nứt trên bề mặt, dẫn đến thấm nước. 

Vì vậy, các kiến trúc sư khuyến khích mọi người nên trồng cây xanh trên sân thượng của mình. Nó không chỉ tốt hơn cho môi trường mà còn bảo vệ công trình xây dựng của bạn.

{keywords}
Các kiến trúc sư khuyến khích việc trồng cây xanh trên sân thượng.
{keywords}
Các giải pháp tận dụng tối đa ánh sáng tự nhiên, tài nguyên nước giúp cho công trình này tiết kiệm năng lượng một cách đáng kể. 

Theo tính toán, bằng cách tận dụng ánh sáng tự nhiên, trồng cây để giảm bức xạ nhiệt và sử dụng hệ thống tưới nước tuần hoàn tự động, ngôi nhà này đã giảm được 30% năng lượng sử dụng cho chiếu sáng và điều hòa không khí. Các giải pháp này không chỉ tiết kiệm năng lượng mà còn bảo vệ công trình khỏi các tác nhân có hại của môi trường.

Các kiến ​​trúc sư hy vọng có thể truyền cảm hứng cho các đồng nghiệp khác để xây dựng nhiều công trình như thế này và thay đổi nhận thức của các thế hệ tương lai đối với môi trường sống. 

Biệt thự thoáng đãng có không gian bếp riêng biệt của đại gia Bình Dương

Biệt thự thoáng đãng có không gian bếp riêng biệt của đại gia Bình Dương

Ngoài không gian sinh hoạt gắn kết cuộc sống hàng ngày, gia chủ muốn kiến trúc sư thiết kế không gian bếp riêng biệt để phục vụ cho việc sáng chế công thức món phở cho chuỗi nhà hàng. 

Quang Đăng (Dịch)