Diện tích nhỏ nhưng sở hữu thiết kế vô cùng ấn tượng lại cực tiện nghi, ai bảo nhà nhỏ, căn hộ nhỏ là thiếu thốn, là tạm bợ nào!
Nói về ngôi nhà lý tưởng, hẳn đa số chúng ta đều mường tượng ra một ngôi nhà hoặc căn hộ rộng rãi, thoáng đãng, có thật nhiều không gian bày đồ trang trí. Và bởi cần nhiều như thế thì chí ít không gian sống ấy cũng phải rộng chừng 100m² mới tạm đủ.
Thế còn với những căn hộ chỉ chừng 40 - 50m² thì sao? Thực ra chúng cũng được thôi, nhưng đa phần chủ nhân của những căn hộ đó đều xếp chúng vào dạng nhà ở tạm thời, vừa ở, vừa dành dụm để sắm những không gian rộng lớn hơn. Nhưng chủ nhân của căn hộ 43m² này chẳng hề nghĩ như thế. Đơn giản bởi căn hộ này sở hữu các bài trí thông minh và sáng tạo đến nỗi dù nhỏ nhưng nó vô cùng đầy đủ, tiện nghi và về tính thẩm mỹ có lẽ chẳng cần phải bàn ra bàn vào nhiều cũng đủ để phải thốt lên: quá đẹp!
Nếu bạn đang mong chờ một thiết kế cao siêu, phức tạp với nhiều chi tiết kĩ thuật hiện đại thì xin báo luôn với bạn là không có đâu. Tất cả những gì căn hộ này có chỉ là một sàn nhà trắng đã xử lý để chống nước, dễ lau chùi, một trần nhà xi măng thô mộc và 1 kệ đồ gỗ lớn.
![]() |
|
Hệ kệ này tạo ra một sảnh nhỏ dẫn vào nhà. Để giúp không gian căn hộ rộng hơn, ở cuối sảnh được lắp thêm một chiếc gương cao sát trần.
Toàn bộ không gian sống chính của ngôi nhà dường như đều tập trung trong hệ kệ gỗ. Ở mặt hướng ra sảnh, kệ gỗ này được tích hợp một số ngăn nhỏ đựng đồ và tủ quần áo rộng 1,7m². |
Hệ kệ gỗ là món nội thất đặc biệt và đáng nhắc đến nhất trong căn hộ này. Nó đã được đo ni đóng giày để phân chia các không gian sinh hoạt trong nhà thật hiệu quả. Nhờ nó mà các khu vực hành lang, phòng khách, phòng ngủ được phân định rõ ràng mà vẫn có sự kết nối mật thiết.
![]() |
|
Khối phòng khách nhỏ gọn nhưng không kém phần ấn tượng với chiếc sofa màu xanh lá xinh ơi là xinh. Chỉ cần một ghế sofa 2 chỗ thế này và một chiếc bàn nước cơ động là cũng đủ để tiếp khách tới chơi nhà.
Bàn làm việc là kệ gỗ đồng màu với hệ kệ trong căn hộ. Kiểu bàn tích hợp với cửa sổ thế này giúp chủ nhà có không gian thoáng, sáng, đồng thời tiết kiệm được diện tích.
Khu tiếp khách với hướng nhìn ra khu bếp nấu. |
Không chỉ để dành chỗ cho sofa tiếp khách mà hệ kệ này còn được tính toán kĩ để đáp ứng đủ không gian của một giường ngủ đôi rộng rãi, những ngăn chứa đồ tiện dụng, khoảng thư giãn cho chủ nhân và đặc biệt hơn nữa là những ngăn chứa đồ rộng rãi được tích hợp ở phía dưới sàn gỗ.
![]() |
|
Khối hệ gỗ đảm bảo cho căn hộ có không gian nghỉ ngơi, thư giãn, lưu trữ đồ gọn gàng và thoáng đãng.
Phòng ngủ kết nối với khoảng thư giãn cá nhân và nằm chung trong phần tôn cao của kệ gỗ.
Hệ kệ được chia thành những ngăn nhỏ có diện tích hợp lý để đáp ứng nhu cầu lưu trữ của chủ nhà.
Với vài chiếc ghế nệm và chiếc máy chiếu...
... nơi này hoàn toàn có thể biến thành rạp chiếu phim tại nhà. Ai bảo nhà nhỏ là thiếu hụt đủ thứ nào!
Phòng ngủ chỉ rộng 4m² nhưng êm ái, tiện nghi. Không có kệ đầu giường nhưng nhờ kệ gỗ được tính toán kĩ từ khi thiết kế mà căn phòng này vẫn có giá đồ nhỏ nhưng rất tiện. Nếu muốn riêng tư, bạn chỉ cần kéo rèm là được.
Chân đèn ngủ có trục xoay để dễ dàng di chuyển khi muốn đọc sách.
Một lối khác để tiếp cận với phòng ngủ mà không cần đi qua khu nấu nướng hay nơi tiếp khách. |
Không gian bếp và nhà vệ sinh có diện tích khiêm tốn và nằm ở khối đối diện với khối khách, ngủ, thư giãn. Điểm chung của 2 không gian này nhỏ nhưng đảm bảo tiện nghi cũng như sở hữu những thiết kế dành riêng cho nhà nhỏ để tận dụng được tối đa diện tích.
![]() |
|
Bếp chỉ rộng 6,2m² với cách bố trí nội thất thông minh, gọn gàng.
Kiểu bàn ăn không chân gọn gàng, tiết kiệm diện tích.
Phòng tắm rộng 3,3m² nhưng vẫn có bồn tắm để thư giãn.
Cụ thể ở căn phòng này chỉ có những món đồ dùng cần thiết và cơ bản nhất như bồn rửa mặt và bồn cầu.
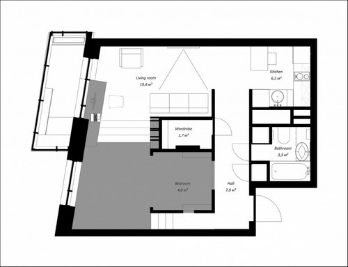
Sơ đồ thiết kế của căn hộ.
Mặt cắt nhìn từ khu thư giãn.
Mặt cắt nhìn từ phòng khách. |
Theo Trí Thức Trẻ



















