Cụ thể, mặt đứng phía trước để kinh doanh có vỉa hè rộng lát đá tự nhiên, khoảng sân riêng kết hợp cửa cuốn mở rộng hết mặt tiền cho từng căn thuận tiện cho việc kinh doanh. Mặt đứng phía sau có hướng nhìn chính ra công viên, đón trọn không khí và ánh sáng của công viên nội khu.
Tối ưu kinh doanh, không gian thoáng rộng
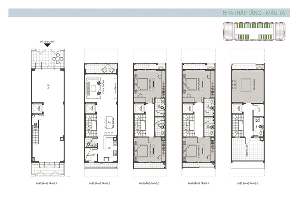
Shophouse Bình Minh Garden có diện tích từ 78,7 - 94,6m2, bao gồm 5 tầng. Trong đó, tầng 1 được thiết kế riêng biệt để khai thác tối đa mặt bằng kinh doanh/cho thuê.
Điểm nhấn đầu tiên, shophouse Bình Minh Garden sở hữu chiều cao xây dựng 3m9, cầu thang bộ được thiết kế có chủ ý lùi vào bên trong, bản mặt cầu thang quay về phía sau khiến khoảng diện tích dành cho kinh doanh/thuê văn phòng tại tầng 1 rộng tối đa. Với sự tỉ mỉ từng chi tiết, không gian tầng 1 shophouse Bình Minh Garden vừa toát lên sự sang trọng, vừa rộng rãi đáp ứng nhu cầu mặt bằng của cả những nhãn hàng nổi tiếng.
![]() |
| Thiết kế căn shophouse Bình Minh Garden điển hình tại mặt đường Đức Giang |
Bên cạnh cầu thang bộ, đơn vị đầu tư và phát triển khéo léo bố trí mỗi căn shophouse đều có thang máy riêng. Với căn nhà 5 tầng, việc di chuyển lên xuống các tầng không còn là trở ngại, đặc biệt đối với gia đình có người lớn tuổi. Mặt “shop” tại shophouse Bình Minh Garden cũng được trang bị 2 lớp cửa bao gồm 01 cửa kính cường lực và 01 cửa cuốn, tạo điều kiện thuận lợi cho kinh doanh mặt ngoài.
Ngoài ra, tọa lạc tại vị trí “vàng” trong khu vực, 93 Đức Giang, quận Long Biên, Hà Nội, shophouse Bình Minh Garden sở hữu vỉa hè rộng lên tới 10m2. Đây là điểm cộng hiếm có đặc biệt đối với loại hình bất động sản để kinh doanh. Mặt tiền shophouse Bình Minh Garden đều hướng ra các mặt đường lớn, có tần suất giao thông nhộn nhịp như đường Đức Giang rộng 17,5m, đường nội khu 17m, 21m... Với lợi thế này, shophouse Bình Minh Garden bên cạnh phục vụ đối tượng khách hàng trong nội khu dự án còn thu hút nhiều khách vãng, di chuyển trên đường.
Tổ ấm sang trọng, tiện nghi
Cùng với không gian kinh doanh thoáng rộng, thiết kế 2 mặt tiền có “1-0-2” này tạo điều kiện cho người sở hữu “mua 1 được 2” khi còn là tổ ấm tiện nghi, hiện đại. 2 mặt tiền ưu việt giúp tách biệt không gian để ở và không gian kinh doanh.
![]() |
| Mặt tiền thứ 2 Bình Minh Garden hướng thẳng ra công viên Ánh Dương rộng 6.610m2. |
Trái ngược với sự nhộn nhịp, sầm uất của mặt tiền thứ nhất, mặt tiền thứ 2 mang lại cảm giác yên ả, thư thái khi hướng thẳng ra phía công viên. Ngay sát khoảng sân riêng của từng căn là các tiện ích cao cấp (đài phun nước, bãi cỏ xanh và cây xanh bóng mát, khu vui chơi trẻ em, sân bóng rổ...) chính vì vậy mặt thứ 2 đơn vị phát triển vẫn sử dụng các cửa kính lớn và ban công cho các phòng tầng trên để tận hưởng không khí và ánh sáng của công viên nội khu.
Shophouse Bình Minh Garden bao gồm 01 phòng khách, 4 phòng ngủ lớn và các phòng chức năng như phòng vệ sinh, phòng thờ… Gia chủ có thể tùy biến thiết kế nội thất theo đúng phong cách riêng.
Tại tầng 5, với không gian rộng khoảng 20m2 được thiết kế mái khe sáng thông minh, gia chủ có thể thiết kế thành “khu vườn bí mật” thú vị để làm skybar, vườn nhiệt đới hay nơi tập yoga, nơi thưởng trà đầy hấp dẫn.
Đặc biệt, mỗi căn shophouse Bình Minh Garden sở hữu một giếng trời mang ánh sáng và gió tự nhiên xuyên suốt từ tầng mái mái xuống đến tầng 1. Giếng trời vừa mang ý nghĩa phong thủy mang lại vượng khí cho ngôi nhà, đồng thời giúp điều hòa không khí, hiệu chỉnh ánh sáng, khiến không gian trở nên trong lành và thoải mái.
Dự án shophouse Bình Minh Garden hiện đã hoàn thiện 95%. Khách hàng muốn mục sở thị thiết kế ưu việt “2 trong 1” tại dự án, liên hệ: Công ty Cổ phần Bất động sản Thế Kỷ - CenLand.
Doãn Phong

