Dự án này tọa lạc trên bãi biển Non Nước thuộc bờ biển Đà Nẵng (P.Hào Hải, Q.Ngũ Hành Sơn, TP.Đà Nẵng) nổi tiếng của Việt Nam. Dự án gồm 40 căn biệt thự được phân theo các loại A, B, C và D. Trong bài viết này, nhóm thiết kế xin giới thiệu về kiến trúc và nội thất của một căn biệt thự loại A. 

{keywords}
Mô phỏng hình khối kiến trúc của công trình. 

Đây là một dự án chất lượng cao, truyền cảm hứng cho nhóm thiết kế rất nhiều. Yêu cầu đặt ra là phải thiết kế căn biệt thự này sao cho sang trọng và trang nhã nhất có thể để đáp ứng tiêu chuẩn sống cao cấp nhưng vẫn giữ được cảm giác của bãi biển.

Ý tưởng chủ yếu tập trung vào việc làm thế nào để tối đa hóa sự riêng tư cho mỗi gia đình nhưng vẫn tạo ra không gian vui chơi rộng lớn với thiên nhiên, hòa nhập với biển cả.

{keywords}
Mặt cắt của công trình.

Để tối đa hóa hiệu quả của dự án, quy hoạch tổng thể được tổ chức tốt nhưng lối đi quá hẹp với mật độ cao. Trong điều kiện này, mục tiêu của nhóm thiết kế là tạo ra một thiết kế sáng tạo và hiệu quả để không chỉ đáp ứng sự riêng tư tối đa mà còn tạo thêm lợi ích từ những khoảng trống và khu vườn tự nhiên.

Mỗi biệt thự đều có cảnh quan đa chiều với hồ bơi tràn bờ và khu vườn nhiệt đới. Đối với mỗi biệt thự, thiết kế cũng tận dụng không gian sử dụng bằng cách nâng và xoay chuyển khối phía trên cho các phòng ngủ có sự riêng tư và tầm nhìn rộng mở. 

{keywords}
Mặt bằng chi tiết tầng trệt của biệt thự. 
{keywords}
Các không gian nhà bếp, bàn ăn và phòng khách liên thông với nhau. 
{keywords}
Cách bố trí này kết hợp với các hệ thống cửa kính lớn hai bên giúp cho không gian thêm thoáng đãng. 
{keywords}
Từ bàn ăn có thể phóng tầm nhìn ra biển.
{keywords}
Không gian sinh hoạt chung này kết nối trực tiếp với hồ bơi và cảnh quan xung quanh. 
{keywords}
Phòng ngủ ở tầng trệt. 
{keywords}
Không gian sân vườn xanh mát hơn với hồ bơi ngoài trời. 

Khối dưới với phòng khách, phòng ăn, nhà bếp và phòng ngủ có sự kết nối trực tiếp với hồ bơi và cảnh quan. Hơn nữa, kiến trúc sư đưa cảnh quan lên mái để hạ nhiệt toàn bộ tòa nhà và cải thiện thẩm mỹ cảnh quan trên mái.

Mật độ bây giờ không phải là vấn đề lớn, mỗi biệt thự đều có sân vườn riêng tràn ngập giếng trời và môi trường xanh xung quanh. Triết lý thiết kế là làm thế nào để không gian sử dụng thoáng đãng từ trong ra ngoài, bên ngoài là sân vườn tự nhiên tạo nên cảm giác sang trọng của ngôi nhà.

{keywords}
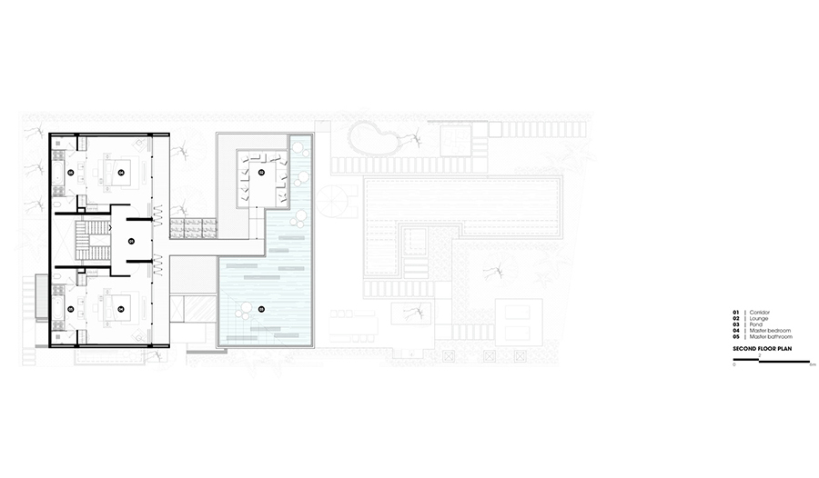
Mặt bằng chi tiết tầng trên của biệt thự. 
{keywords}
Hai phòng ngủ lớn được bố trí ở tầng trên. 
{keywords}
Từ phòng ngủ có thể phóng tầm nhìn ra ao nước tràn bờ.
{keywords}
Giường ngủ được bố trí ở giữa phòng. 
{keywords}
Phòng tắm của một trong hai phòng ngủ lớn ở tầng trên biệt thự.
{keywords}
Từ hai phòng ngủ lớn có lối đi ra ao nước tràn bờ. 
{keywords}
Ngoài ao nước, trên mái không gian sinh hoạt chung còn có bãi cỏ và góc thư giãn rộng lớn. 
{keywords}
Góc ngồi thư giãn ngoài trời thú vị trên mái không gian sinh hoạt chung. 
{keywords}
Không gian sống, cảnh quan xung quanh và biển cả dường như không có sự ngăn cách. 

Vật liệu xây nhà là vật liệu địa phương nhằm giảm phí vận chuyển và tiết kiệm ngân sách. Thiết kế của ngôi nhà đơn giản, kiểu dáng đẹp, chi phí xây dựng không quá cao. Ngôi nhà được xây dựng với kết cấu chống chọi được với những cơn bão nhưng vẫn đạt yêu cầu thông gió tự nhiên.

Biệt thự hiện đại dư thừa không gian xanh ở 'khu nhà giàu' TP.HCM

Biệt thự hiện đại dư thừa không gian xanh ở 'khu nhà giàu' TP.HCM

Toạ lạc ở "khu nhà giàu" P.Thảo Điền, TP.Thủ Đức, TP.HCM, nơi được xem là "tấc đất tấc vàng", thế nhưng chủ của căn biệt thự này lại không tiếc diện tích để bố trí thật nhiều mảng xanh. 

Quang Đăng (Dịch)