Ngôi nhà nhỏ xinh nhưng được Kiến trúc sư thiết kế thoáng mát với giếng trời trên cầu thang.
Hỏi:
Kính gửi chuyên mục Nhà đẹp!
Vợ chồng tôi có mảnh đất 35m2 với mặt tiền 3,2m, chiều dài 10,9m. Mảnh đất của gia đình tôi nằm trong ngõ nhưng ô tô vẫn đi vào được. Thời gian tới tôi dự định xây nhà ba tầng cho gia đình ba người ở gồm vợ chồng tôi và một cháu nhỏ đang học cấp một.
Tôi muốn xây nhà hiện đại, đẹp và quan trọng là thoáng mát. Các phòng chức năng cho từng tầng tôi tính phân chia cụ thể như sau:
- Tầng 1 gồm có: Phòng khách, phòng bếp và bàn ăn. Không cần thiết kế chỗ để xe vì vợ chồng tôi để bên sân nhà bố mẹ ngay cạnh cho rộng rãi.
- Tầng 2 gồm có: Hai phòng ngủ, một phòng tắm.
- Tầng 3 gồm có: Phòng thờ, phòng giặt và sân phơi.
Mong Kiến trúc sư (KTS) tư vấn giúp vợ chồng tôi. Tôi cảm ơn KTS rất nhiều!
(NL – Hà Nội)
Trả lời:
Theo những thông tin gia chủ cho biết thì mảnh đất của gia đình đang sở hữu khá khiêm tốn. Tuy nhiên, ở Hà Nội những ngôi nhà nhỏ như vậy không phải là cá biệt mà rất phổ biến. Ưu điểm của mảnh đất là tuy diện tích khiêm tốn nhưng vuông vắn, không bị méo, ngõ vào lại rộng thuận tiện cho việc xây dựng.
KTS sẽ tính toán để các phòng chức năng đều thoáng khí, không bị bí bách hay chật chội, tối tăm gây khó chịu cho các thành viên trong gia đình.
Dưới đây là phương án cụ thể do KTS. Nguyễn Thanh Tùng nghiên cứu kỹ lưỡng đưa ra:
*Về phương án thiết kế mặt bằng
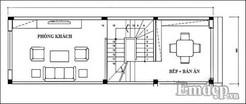
- Mặt bằng tầng 1:
Tầng một gồm hai không gian chính là phòng khách, phòng bếp và bàn ăn. Hai phòng này được phân chia diện tích tương đối bằng nhau. Cả hai phòng đều vuông vắn và đủ rộng để bài trí đồ đạc nội thất cần thiết.
Tuy nhiên, để ngôi nhà ba tầng luôn thu hút được không khí và ánh sáng tự nhiên, KTS đã thiết kế giếng trời phía trên cầu thang. Giếng trời là giải pháp phù hợp và hiệu quả nhất để ngôi nhà lưu thông không khí tốt và không bị tối, bí bách.
Đặc biệt, đối với nhà chỉ 35m2 thì lại càng cần thiết. Giếng trời phía trên cầu thang giúp toàn bộ không gian sống nói chung và những phòng phía trong nói riêng luôn sáng và thoáng.
![]() |
|
Mặt bằng tầng 1. |
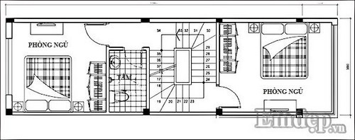
- Mặt bằng tầng 2:
Hai phòng ngủ trong đó một phòng dành cho vợ chồng gia chủ, một phòng cho con gia chủ được thiết kế khá đồng đều ở mặt bằng tầng hai. Phòng ngủ của vợ chồng gia chủ đặt phía trước và rộng hơn một chút so với phòng ngủ của con.
Ngoài giếng trời thì hệ thống cửa giúp các phòng tầng hai luôn thông thoáng, mát mẻ và tràn ngập ánh sáng tự nhiên. Ban công phía trước phòng ngủ của vợ chồng cũng mang lại cho cuộc sống lứa đôi thêm nét lãng mạn, đáng yêu.
Phòng ngủ của con được sắp xếp bên trong yên tĩnh nhưng vẫn đảm bảo đủ ánh sáng để việc học tập của con luôn được thuận lợi. Do không gian hẹp nên KTS chỉ thiết kế một phòng tắm ở giữa để cả gia đình dùng chung trên tầng hai của ngôi nhà.
![]() |
|
Mặt bằng tầng 2. |
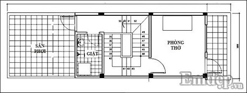
- Mặt bằng tầng 3:
Phòng thờ được bố trí phía trước không gian. Từ phòng thờ cũng có cửa mở ra ban công xanh phía trước tạo nên không gian thờ cúng nhẹ nhàng, linh thiêng.
Phòng giặt và sân phơi được đặt cạnh nhau ở phía sau nhà. Gia đình có thể tận dụng sân phơi rộng để trồng thêm cây xanh giúp thanh lọc không khí cho không gian sống.
![]() |
|
Mặt bằng tầng 3. |
*Về phương án phối cảnh kiến trúc mặt tiền
Mặt tiền ngôi nhà KTS thiết kế hài hòa, hiện đại và trẻ trung phù hợp với gia đình trẻ. Sự kết hợp tinh tế giữa các mảng màu giúp không gian sống nổi bật và ấn tượng. Ở tầng một KTS lựa chọn đá ốp màu đen mang lại nét sang trọng cho ngôi nhà.
Đến tầng hai KTS lại sử dụng màu cam bắt mắt, tràn đầy sức sống làm điểm nhấn đẹp cho tổ ấm bé xinh. Tầng ba KTS dùng gam màu trung tính để cân đối lại tổng thể mặt tiền. Lựa chọn màu sắc tinh tế kết hợp cửa kính thanh thoát giúp ngôi nhà nhỏ đơn giản nhưng vô cùng xinh xắn và đáng yêu.
![]() |
|
Mặt tiền ngôi nhà được KTS thiết kế trẻ trung, bắt mắt với mảng tường trung tâm màu cam làm điểm nhấn. |
Một số gợi ý về cách bài trí các phòng chức năng
![]() |
|
Phòng khách sang trọng với nội thất bài trí hài hòa. (Ảnh minh họa)
Bàn ăn hiện đại, nổi bật. (Ảnh minh họa)
Phòng ngủ dành cho vợ chồng gia chủ lung linh với đầy đủ góc làm việc, thư giãn.
Phòng ngủ rực rỡ, tươi tắn cho con chủ nhà với màu cam làm điểm nhấn. (Ảnh minh họa)
Một thiết kế khác phòng ngủ dành cho con chủ nhà. (Ảnh minh họa) |
Trên đây là phương án do KTS nghiên cứu đưa ra. Chúc gia đình xây được ngôi nhà nhỏ đáng yêu, hiện đại và khang trang!
Theo Em đẹp








