
>> Soi phong thủy từ những ‘bạch dinh’ cực bề thế của sao Việt
![]() |
Vì nhu cầu nhà ở ngày càng tăng cao mà đất đai lại khan hiếm, khu vực này đã được giải phóng mặt bằng và cải tạo thành khu dân cư nhưng vẫn mang đặc điểm của khu vực vùng núi với địa thế khá dốc.
![]() |
Khó khăn đầu tiên khi xây dựng dự án là địa hình dốc tự nhiên của khu vực. Các kiến trúc sư đã tính toán và thiết kế móng nhà bằng đá với độ dốc ngược hướng so với độ dốc của địa hình, điều này giúp ngôi nhà trở nên bằng phẳng và ổn định hơn.
![]() |
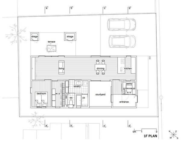
Cửa chính ngôi nhà quay về hướng đông nhằm đón thêm ánh nắng vào nhà và trong quan điểm phong thuỷ của Nhật Bản đây cũng là một hướng tốt. Một khu vườn nhỏ và bãi đậu xe cũng được đặt trước nhà nhằm tăng sự hoà hợp giữ ngôi nhà với môi trường thiên nhiên đồng thời thuận tiện cho việc di chuyển.
![]() |
Phần sân nhỏ phía sau có thiết kế đặc biệt với giếng trời khoét xuyên qua mái nhằm cung cấp ánh sáng tự nhiên cho ngôi nhà. Một băng ghế gỗ dài được đặt vào khu vực này làm nơi nghỉ ngơi và sinh hoạt ngoài trời.
![]() |
Để đón thêm những cơn gió dễ chịu vào nhà đông thời hạn chế ánh mặt trời gay gắt, phần mái nhà được thiết kế dài hơn ở phía Tây và một giếng trời lớn được bố trí ở phần mái phía Đông.
![]() |
Bài trí phòng ốc trong nhà cũng đặc biệt với các căn phòng nhỏ đặt sát nhau, kết nối với nhau thông qua một sảnh nhà dài, rộng, để di chuyển từ phòng này qua phòng khác đều phải đi qua khu vực này.
![]() |
Cửa trượt được sử dụng cho các phòng với màu trắng trùng với màu tường, chìm lẫn vào các bức tường khi đóng lại, đem cho người cư ngụ cảm giác rộng rãi hơn về không gian.
(Theo archdaily.com)

Tròn mắt với bàn ăn ‘khắc nhập khắc xuất’ sinh ra để dành cho nhà bếp nhỏ
Các mẫu bàn ăn có khả năng "biến hóa", "khắc nhập khắc xuất" vô cùng tài tình, giúp gia chủ tiết kiệm được diện tích mặt sàn cực lớn cho gian bếp.

Soi độ sang chảnh của biệt thự biển độc nhất vô nhị
Chỉ cách vài bước chân từ bãi cát trắng trải dài thơ mộng và rặng dừa xanh mát mắt, Villa Akoya hiện lên đẹp chẳng kém cạnh một resort nghỉ dưỡng sang chảnh.

Đại gia chơi trội, biệt phủ trên núi sang như resort
Một căn nhà bên dốc đá, nhìn ra mặt hồ xanh thẳm vốn chỉ được thấy trên phim đã được kiến trúc sư McCall xây dựng cho một gia đình ở Idaho, dinh thự này tọa lạc trên một vách đá cạnh Hồ Payette

Khám phá căn nhà bí mật của “người rừng” ở Mỹ
Dự án được xây dựng bởi kiến trúc sư Will Beilharz, ngôi nhà nằm trên một con suối thơ mộng chảy qua cánh rừng tuyệt đẹp ở Texas, các phần của ngôi nhà được kết nối với nhau bằng cây cầu treo lơ lửng bắt qua hai cây bách lớn.






