Với căn hộ có diện tích khoảng 77m², KTS đã khéo léo cải tạo lại không gian để căn hộ có thể bố trí thêm 1 phòng ngủ nữa mà vẫn giữ được sự thoáng mát và đầy đủ ánh sáng cho các không gian sinh hoạt chung.
Kính gửi chuyên mục Nhà đẹp
Gia đình tôi có căn hộ chung cư 2 phòng ngủ (phòng ngủ bên phải đã thay đổi lại hướng cửa - ảnh bên dưới) , tôi muốn thiết kế lại căn hộ thành 3 phòng ngủ theo 1 số tiêu chí sau:
- Đảm bảo căn hộ thoáng, đủ ánh sáng.
- Không gian liên thông giữa phòng khách và bếp ăn không bị tối, chật hẹp
- Giữ nguyên hiện trạng của 2 WC và bếp như thiết kế ban đầu.
Rất mong nhận được sự tư vấn của các chuyên gia KTS.
Xin chân thành cảm ơn!
Kiến trúc sư tư vấn:
Dựa theo những thông tin mà bạn cung cấp và yêu cầu thiết kế cho căn hộ, chúng tôi xin đưa ra phương án mặt bằng tư vấn cải tạo để bạn tham khảo.
![]() |
|
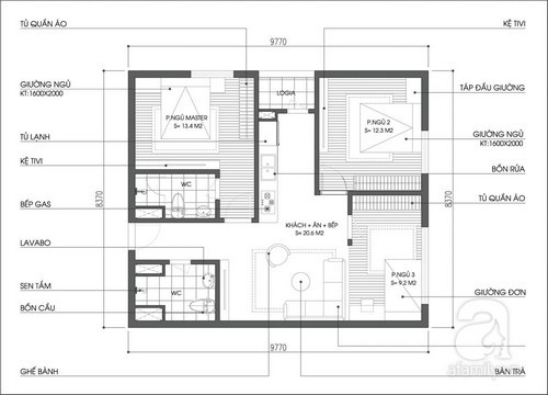
Mặt bằng hiện trạng.
Mặt bằng tư vấn. |
Theo yêu cầu mà bạn đề ra thì chúng tôi đưa ra phương án cải tạo là giữ nguyên vị trí các phòng bếp. 2 vệ sinh và 2 phòng ngủ, chỉ thay đổi vị trí của phòng khách. Phòng khách sẽ được chúng tôi bố trí vào khoảng không gian giữa nhà, thay vào đó, vị trí phòng khách hiện trạng sẽ được thay thế làm phòng ngủ thứ 3, tuy nhiên phòng ngủ này sẽ hoàn toàn sử dụng vách kính để có thể lấy sáng cho các không gian phía trong như khách, bếp và ăn. Cách phân chia như vậy sẽ giúp cho không gian nhà có thêm nhiều tiện ích và luôn tràn đầy ánh sáng.
Bước vào nhà sẽ là 1 hành lang dài, kết hợp các không gian phụ trợ như vệ sinh được bố trí ngay lối vào rất tiện lợi. Vào phía trong nữa sẽ là không gian sinh hoạt chung của gia đình, phòng khách, ăn bếp được bố trí trong cùng một không gian tạo cảm giác ấm cúng thân thiện và gắn kết mọi người gần nhau hơn. Phòng khách chúng tôi sử dụng ghế sofa chữ L kết hợp bàn tròn giúp tiết kiệm diện tích, ngoài ra còn sử dụng ghế thư giãn tạo không gian sinh động hơn. Khu bếp vẫn được giữ nguyên với hệ tủ bếp chữ I ăn theo không gian, giúp căn phòng trở nên thoáng và không có mùi dầu mỡ.
Không gian sinh hoạt riêng gồm có 3 phòng ngủ, Phòng ngủ master và 2 phòng ngủ nhỏ. Phòng ngủ master được ưu tiên hơn khi sở hữu vệ sinh riêng rất tiện nghi. Căn phòng sử dụng giường 1800x2000 khá rộng và thoải mái, bên cạnh đó có táp đầu giường và bàn trang điểm kết hợp với bàn làm việc. Phòng của thứ 2 được sử dụng những đồ nội thất đơn giản như giường ngủ, tủ quần áo, kệ tivi.
Phòng ngủ thứ 3 được bố trí thêm và được ưu tiên nằm hướng ra phía cửa sổ. Căn phòng sử dụng hoàn toàn bằng vách kính, không chỉ lấy sáng cho mỗi phòng đó mà còn lấy sáng cho các không gian chung bên trong, tuy nhiên với phương án này thì phải sử dụng rèm che ở vách kính để tạo sự riêng tư khi cần thiết.Tất cả các phòng đều được sử dụng các hệ cửa kính cửa sổ lớn giúp không gian luôn tràn ngập ánh sang, cuộc sống được cải thiện. Bạn có thể bố trí thêm đồ décor hoặc cây xanh sẽ làm cho căn phòng trở nên tươi mát và sống động.
Hy vọng với phương án tư vấn cải tạo và bố trí nội thất của Nhà Hay sẽ đáp ứng được tiện nghi cũng như nhu cầu sinh hoạt của bạn và gia đình. Sau đây là một số hình ảnh tham khảo giúp bạn hình dung không gian sống của mình được tốt hơn.
![]() |
|
Không gian mở liên thông thoáng mát cửa phòng khách và bếp.
Sử dụng ghế sofa chữ L kết hợp bàn tròn.
Hoặc có thể thêm ghế thư giãn để căn phòng trở nên sinh động.
Hệ tủ bếp chữ I đa năng rất nhiều tiện ích.
Phòng ngủ master tràn đầy ánh sáng.
Có thể sử dụng bàn trang điểm kết hợp bàn làm việc.
Phòng ngủ con sử dụng giường đơn giúp tiết kiệm diện tích.
Vệ sinh sử dụng gạch sáng màu sạch sẽ.
Bạn có thể bố trí thêm nhiều đồ décor, chậu cây cảnh nhỏ để căn hộ trở nên sống động và tươi mát hơn. |
Theo Trí thức trẻ










