Với 500 triệu đồng trong tay, liệu bạn có thể sở hữu ngôi nhà 2 tầng có phong cách hiện, gần gũi với thiên nhiên?
Dưới đây là những gợi ý tham khảo cho ngôi nhà mơ ước của bạn:
- Phần thô khoảng 325 triệu đồng
- Giàn cửa sắt 25 triệu
- Gạch 17 triệu
- Đá granit 13 triệu
- Thiết bị vệ sinh, vòi nước 19 triệu
- Hệ thống đèn chiếu sáng 5 triệu
- Nhôm kính 6 triệu
- Sơn nước 20 triệu
- Tủ bếp 30 triệu
- Giường ngủ 15 triệu
- Tủ quần áo 25 triệu.
![]() |
|
Phối cảnh ngôi nhà 2 tầng với mặt tiền đơn giản, dùng tông màu xám nhẹ, theo phong cách hiện đại.
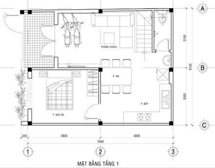
Mặt bằng tầng một: Một bên là sân và nơi để xe, một bên là phòng khách. Phần còn lại bố trí phòng ăn và bếp. Phòng ngủ hướng ra cửa chính thông thoáng.
Tầng 2: Bố trí phòng ngủ bố mẹ và phòng ngủ của con. Hai phòng dùng chung ban công hướng ra bên ngoài lấy sáng. Phía sau là phòng vệ sinh, sân phơi và cầu thang.
Tầng mái: Để bồn nước và trồng rau sạch. Ánh sáng được lấy tối đa từ ô lấy sáng cầu thang.
Một số mẫu thiết kế nội thất nhà theo phong cách hiện đại cho bạn tham khảo: Phòng khách gồm bộ bàn ghế sofa để tiếp khách. Tận dụng không gian dưới gầm cầu thang để làm kệ đựng đồ.
Phòng khách sử dụng tông màu trắng làm chủ đạo, tạo cảm giác rộng rãi.
Gian bếp và phòng ăn chung giúp căn nhà rộng hơn.
Nhà vệ sinh được thiết kế dưới gầm cầu thang để tiết kiệm diện tích.
Phòng ngủ đơn giản nhưng vô cùng ấm cúng.
Tận dụng không gian giếng trời làm phòng giặt, phơi quần áo.
Nhà vệ sinh trên lầu dùng vách ngăn kính tạo không gian mở và đảm bảo sàn phòng luôn khô ráo.
Phòng ngủ bố mẹ hiện đại với cửa sổ và cửa đi ra ban công làm không gian tràn ngập ánh sáng.
Phòng ngủ con.
Sân thượng được tận dụng để trồng rau.
|
Theo Tiền phong
















