
Dawn House là tên của một dự án nhà ở đặc biệt tại TP.HCM. Ngôi nhà được xây trên khu đất rộng 6,5m trong khi chiều sâu chỉ 2,5m. Kiến trúc sư của dự án cho biết đã có những thách thức trong việc thiết kế một ngôi nhà trên diện tích nhỏ như vậy vì mong muốn của khách hàng là xây một ngôi nhà mơ ước cho con cái của họ.

Yêu cầu quan trọng nhất của khách hàng là ngôi nhà tận dụng được ánh sáng ban ngày nhưng vẫn đảm bảo một mức độ riêng tư nhất định, đồng thời đảm bảo các tiêu chuẩn an toàn thiết yếu cho con gái Hồng Minh (Dawn) và con trai Quang Minh (Sunny).

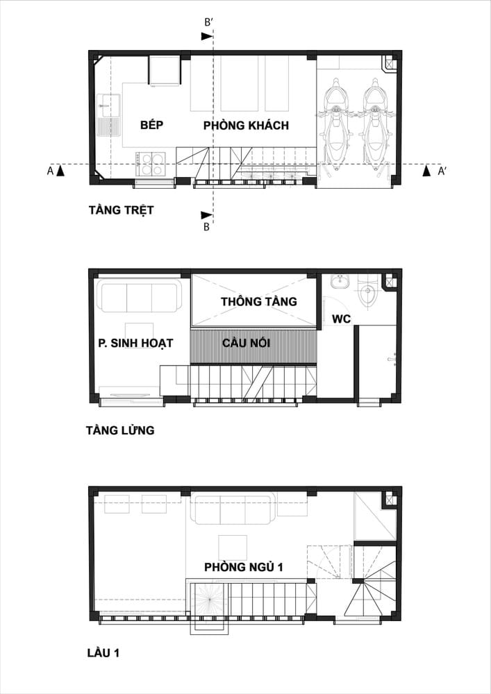
Phòng khách và bếp chung nằm ở tầng trệt, tất cả được bố trí theo chiều ngang của nhà. Với việc sử dụng màu sơn, màu nội thất trắng, ngôi nhà trông rộng rãi hơn diện tích thực tế.

Tầng lửng có một cây cầu kết nối phòng sinh hoạt với nhà vệ sinh.

Tương tự tầng trệt, toàn bộ tầng lửng đều ưu tiên sử dụng nội thất màu sáng. Nhiều ô thoáng cũng như tường gạch kính giúp tối đa hóa lượng ánh sáng tự nhiên vào nhà mà vẫn đảm bảo sự riêng tư.

Cả kiến trúc sư và chủ nhà đều hy vọng ngôi nhà này sẽ là nơi tổ ấm để những đứa trẻ lớn lên.

Các phòng đều có cửa sổ riêng mở ra giếng trời nhằm mục đích thông gió tự nhiên.

Với bức tường gạch kính, mọi không gian trong nhà đều ngập tràn ánh sáng tự nhiên.


Dù hẹp, ngôi nhà vẫn có những khoảng trống để trồng thêm cây xanh.



Mô phỏng thiết kế nhà.
Theo Người đô thị

Những căn nhà có chi phí xây dựng chỉ từ 50 triệu đồng vẫn đẹp long lanh
Với chi phí từ 50 -150 triệu đồng, cao hơn là 600 triệu đồng cho mẫu cao cấp hoặc nhiều tầng, nhà lắp ghép có thể giải được bài toán về chi phí làm nhà ít, tiết kiệm thời gian thi công.