Tọa lạc tại TP. Nha Trang, biệt thự hiện đại có bể bơi này là 1 trong 3 biệt thự nghỉ dưỡng (nhà đá, nhà gỗ và nhà kính) có vị trí vô cùng đắc địa.

Nằm lưng chừng đồi, khu đất có diện tích 420m2 này có tầm nhìn thoáng đãng ra đại dương, vịnh phía trước và núi ở phía sau. Tuy nhiên, nếu không lường trước, mật độ xây dựng cao của khu dân cư sẽ ảnh hưởng đến tầm nhìn ra biển trong tương lai.

{keywords}
Mặt tiền của biệt thự. 
{keywords}
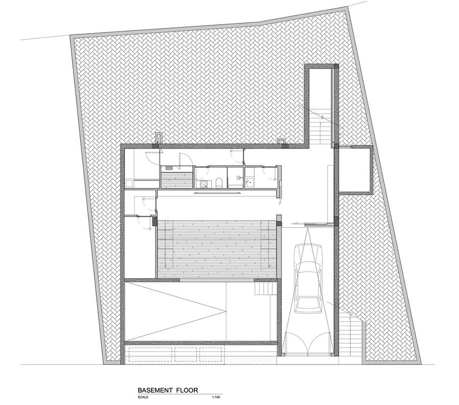
Mặt bằng chi tiết tầng hầm. 
{keywords}
Phòng xem phim của gia đình được bố trí ở tầng hầm, có cửa sổ lấy ánh sáng từ bể bơi. 

Mục tiêu thiết kế đó là tìm ra các giải pháp để tối ưu hóa sự trải nghiệm và phù hợp với mật độ xây dựng cao của khu dân cư trong tương lai cũng như quy định đô thị của địa phương.

Ở góc độ cho thuê nghỉ dưỡng, mục tiêu là tối đa hóa sức chứa và trải nghiệm giải trí. Khách có thể vào chỗ nghỉ từ đường trước bằng cầu thang bên ngoài dẫn lên tầng cao hơn.

{keywords}
Mặt bằng chi tiết tầng 1 của biệt thự.
{keywords}
Lối vào nhà bằng cầu thang đi lên. 

{keywords}

Không gian sinh hoạt chung của gia đình có tầm nhìn ra bể bơi trước nhà. 
{keywords}
Thiết kế trần nhà cao khiến cho không gian sinh hoạt chung rất thoáng đãng. 

Biệt thự được đặt trên một “khối đế” lớn để có đủ chiều cao phóng tầm nhìn ra biển, bao quát đường phố và những khu dân cư ở mặt tiền. Bể bơi được đưa lên cao hơn mặt sàn với 3 mặt tràn. 

Thiết kế này tạo ra sự kết nối thị giác trực tiếp giữa biệt thự và quang cảnh vùng biển, cũng như giảm những tác động trực tiếp của môi trường. 

{keywords}
Bếp, bàn đảo và phòng khách liên thông với nhau. 
{keywords}
Từ không gian sinh hoạt chung có thể phóng tầm nhìn ra bể bơi, xa xa là vịnh. 
{keywords}
Quang cảnh như tranh vẽ. 
{keywords}
Phòng ngủ nhỏ ở phía sau của tầng 1 có không gian mở. 
{keywords}
Biệt thự hiện đại có bể bơi tràn bờ độc đáo ở Nha Trang

Ngôi nhà bao gồm 2 khối chính: Khối phía dưới là không gian sinh hoạt chung với trần nhà cao, được lắp kính phía trước và ốp đá phía sau, có tầm nhìn ra bể bơi, xa xa là những ngọn đồi và đại dương. Khối phía trên như một hộp gỗ treo lơ lửng với cửa gió lớn đóng – mở linh hoạt. 

Với địa thế của khu đất có vách đá phía sau và mặt đường thấp, kiến trúc sư chọn giải pháp thiết kế công trình theo chiều dọc. Từ mặt tiền vào nhà là chỗ đậu xe và phòng xem phim của gia đình. Hai không gian này được bố trí cạnh bể bơi, có cửa sổ dưới nước lấy ánh sáng mặt trời tràn vào bể bơi. Khu vực kỹ thuật và không gian spa ở phía sau. 

{keywords}
Cầu thang nối tầng 1 và tầng lửng. 
{keywords}
Mặt bằng chi tiết tầng lửng. 
{keywords}
Tầng lửng được thiết kế là phòng ngủ 2 giường. 
{keywords}
Từ phòng ngủ này có tầm nhìn ra khu vực sinh hoạt chung. 

Nằm ở tầng trên và quay mặt ra vách đá, phòng ngủ lớn có khu vườn riêng và phòng tắm ngoài trời. Không gian chính của biệt thự là khu vực bếp, bàn đảo và phòng khách, các không gian chức năng này được liên thông với nhau và kết nối với không gian ngoài trời.

Trần nhà cao cho phép bố trí được dãy phòng ngủ ở tầng lửng và vẫn có tầm nhìn ra toàn cảnh khu vực bếp. Khối hộp gỗ chứa tầng 1 với 2 dãy phòng ngủ.

{keywords}
khối phía trên của biệt thự như "hộp gỗ" treo lơ lửng. 
{keywords}
Tầng 2 của biệt thự là nơi bố trí 2 phòng ngủ. 
{keywords}
Trong đó, một phòng ngủ có khu vực vệ sinh liên thông với giường ngủ. 
{keywords}
Khu vực vệ sinh gần gũi với thiên nhiên. 
{keywords}
Bồn tắm nằm được đặt kế bên giường ngủ. 
{keywords}
Hệ thống cửa chớp được thiết kế linh hoạt 

Vật liệu đá sử dụng trong công trình có nguồn gốc địa phương. Vật liệu đá này giúp kết nối công trình với môi trường đá tự nhiên. Bên cạnh đó, những tấm ốp bằng gỗ Teak bao trọn khối nhà phía trên đã hình tượng hoá “hộp gỗ treo”.

{keywords}
Biệt thự lung linh khi về đêm nhờ ánh sáng nghệ thuật từ bể bơi. 
{keywords}
Toàn cảnh biệt thự hiện đại có bể bơi độc đáo về đêm. 
Biệt thự hiện đại 3 tầng ở Nha Trang che nắng bằng 'rèm' dây leo

Biệt thự hiện đại 3 tầng ở Nha Trang che nắng bằng 'rèm' dây leo

Bên cạnh các giải pháp giúp đối lưu không khí giữa trong và ngoài nhà, biệt thự hiện đại 3 tầng này còn gây chú ý nhờ bức rèm che nắng bằng dây leo.  

Quang Đăng (Dịch)