Kiến trúc sư nhận được yêu cầu xây dựng một căn biệt thự cho cặp vợ chồng trẻ kết hợp không gian nhà bếp riêng biệt phục vụ cho chuỗi nhà hàng phở của gia đình. 

Bên trong khu đất, gia chủ mong muốn có một không gian sinh hoạt gia đình gắn kết cuộc sống hàng ngày với công việc để họ có thể trực tiếp thử và sáng chế ra công thức gia truyền cho món phở. Bên cạnh đó, gia chủ còn muốn có một không gian sống gần gũi với thiên nhiên.

{keywords}
Mặt bằng chi tiết tầng 1 của biệt thự. 

Khu đất nằm trong khu vực đang phát triển của thành phố, là khu vực có mật độ xây dựng thấp và chưa bị ảnh hưởng bởi quá trình đô thị hóa. Có rất nhiều ngôi nhà nhỏ đã được xây dựng trước mặt tiền của ngôi nhà. 

{keywords}
Phối cảnh thiết kế các không gian chức năng ở tầng 1. 

Có chiều sâu 50 mét, ngôi nhà tiếp giáp với khu vườn gần đó. Những yếu tố này giúp kiến trúc sư giải quyết một vấn đề quan trọng là nên đặt ngôi nhà chính ở đâu trên lô đất để tận dụng chiều sâu của khu đất cũng như đưa ngôi nhà vào bối cảnh tự nhiên xung quanh.

{keywords}
Khoảng sân phía trước nhà.
{keywords}
Mặt sau của biệt thự, nơi có ao nước và bãi cỏ rộng. 
{keywords}
Góc thư giãn yên bình ở sân vườn. 
{keywords}
Giữa sân vườn và không gian chính của ngôi nhà chính là ao nước, mang lại cảm giác mát mẻ. 

Kiến trúc sư đặt ngôi nhà chính gần như ở trung tâm của lô đất. Mặt tiền hướng ra phố được trồng cây ăn quả địa phương. Với không khí trong lành và hướng Đông Nam, kiến trúc sư dành ra một bãi cỏ trống lớn làm không gian đệm, nó không chỉ phục vụ sinh hoạt bên ngoài mà còn kết nối không gian làm việc của gia đình với nhà chính.

{keywords}
Không gian làm việc của gia đình được bố trí riêng biệt ở cuối lô đất. 
{keywords}
Trong không gian này có cả nhà vệ sinh và phòng tắm. 

Tại ngôi nhà chính, kiến trúc sư tổ chức các không gian riêng tư như phòng ngủ và không gian sinh hoạt của gia đình thành một khối hộp, được nâng lên khỏi mặt đất. Bằng cách này, tầng đầu tiên được giải phóng, có tầm nhìn thoáng ra các không gian dọc theo ngôi nhà, trong đó bàn ăn sẽ là trung tâm của sinh hoạt ở tầng một.

Nhà bếp, các không gian đa chức năng, bãi cỏ, sân, ao, ... được đan xen. Các cột bê tông ở trung tâm của ngôi nhà được thay thế bằng các cột đá. Để tăng cường sự kết nối giữa các tầng, kiến trúc sư còn trồng các cây cao xuyên các tầng. Tán cây trên đỉnh có thể giảm bớt ánh nắng chiếu trực tiếp vào mái nhà hoặc trần nhà, nó còn tạo nên một “công viên” thu nhỏ trên mái nhà.

{keywords}
Tiếp giáp ao nước là không gian nhà bếp riêng biệt. 
{keywords}
Không gian bếp này vừa là nơi phục vụ sinh hoạt hàng ngày của cả gia đình...
{keywords}
... vừa là nơi gia chủ thử và sáng chế công thức món phở cho chuỗi nhà hàng của mình. 
{keywords}
Kế bên không gian nhà bếp là bàn ăn. 
{keywords}
Không gian ăn uống của gia đình rất thoáng đãng nhờ được bố trí ở khoảng thông tầng. 
{keywords}
Không gian đa chức năng phía trước và không gian ăn uống liên thông với nhau. 

Các không gian chức năng riêng tư tại tầng 2 phân chia thiên nhiên theo chiều dọc. Các “cửa sổ” trên tường, sàn, trần nhà được mở tùy theo chức năng cụ thể của từng phòng, giúp chúng kết nối với toàn bộ ngôi nhà. 

Phòng khách thông với bàn ăn bên dưới, giếng trời và ao nước phía trên. Phòng ngủ nhỏ kết nối với bãi cỏ là khoảng không gian trống rộng ở phía sau, nơi diễn ra các hoạt động của gia đình. 

Phòng ngủ lớn nhìn thẳng ra khu vườn phía trước, nơi có những tán cây rộng để giữ sự riêng tư cho căn phòng. Tại trung tâm tầng 2, kiến trúc sư sử dụng kết cấu vách gỗ với mong muốn tạo sự gần gũi và gắn kết mọi không gian riêng tư lại với nhau.

{keywords}
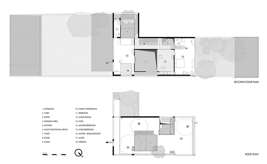
Mặt bằng chi tiết tầng 2 và tầng mái của biệt thự.
{keywords}
Phòng ngủ lớn trên tầng 2 có hướng nhìn ra phía trước nhà. 
{keywords}
Với thiết kế vách kính mang đến tầm nhìn thoáng đãng cho không gian phòng ngủ. 
{keywords}
Phòng ngủ nhỏ có hướng nhìn ra sân vườn sau nhà. 
{keywords}
Có khu vực vui chơi cho bé ngay trong phòng ngủ. 
{keywords}
Trung tâm tầng 2, kiến trúc sư thiết kế kết cấu vách gỗ tạo nên sự gần gũi. 
{keywords}
Phòng tiếp khách ở trên tầng 2.
{keywords}
Không gian này cũng được thiết kế thông thoáng và tràn ngập ánh sáng tự nhiên. 

Với thời tiết đặc trưng không có mùa đông của miền Nam Việt Nam, chúng ta có thể mở rộng các khối không gian chức năng thông qua việc thiết kế mặt bằng xen kẽ ở tầng trệt, kết hợp các khoảng trống theo chiều dọc trên sàn, tường, trần. Cuối cùng, kiến trúc sư mong muốn tạo ra một môi trường sống tự do và gần gũi với thiên nhiên cho ngôi nhà này. 

{keywords}
Một ao nước nhỏ được bố trí trên tầng mái. Đây cũng là nơi thư giãn thú vị. 
{keywords}
Cạnh đó là không gian thờ cúng. 
{keywords}
Sàn của không gian thờ cùng được làm bằng kính. 
Biệt thự vườn xanh mướt ở Phú Quốc độc đáo  nhờ thiết kế không có cửa

Biệt thự vườn xanh mướt ở Phú Quốc độc đáo nhờ thiết kế không có cửa

Nằm trong tổng thể dự án, mỗi cụm biệt thự tạo thành một xóm nhỏ có lối đi riêng và sân chung, mang đến hình ảnh làng quê thân thuộc. Mỗi biệt thự vẫn có được sự riêng tư và hoà quyện với thiên nhiên. 

Quang Đăng