Đây là căn biệt thự nghỉ dưỡng nằm trong một thung lũng dưới chân núi thuộc thị trấn Tam Đảo. Gia chủ dễ dàng đón bình minh khi mặt trước biệt thự có hướng Đông, đồng thời ngắm hoàng hôn khi mặt sau hướng về thung lũng sân golf hướng Tây. 

{keywords}
Mô phỏng hình khối kiến trúc của công trình.

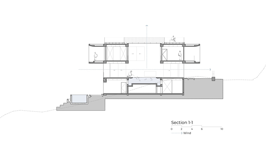
Công trình được thiết kế 3 tầng, thấp dần về phía thung lũng. Biệt thự có hình khối kiến ​​trúc đơn giản với ba khối hộp vuông vắn đặt chồng lên nhau. 

{keywords}
Hình khối kiến trúc của biệt thự đơn giản với 3 khối hộp vuông đặt chồng lên nhau. 

Khối lớn nhất là tầng 2, với kích thước 22m x 22m x 3,3m. Các hộp tầng trệt và tầng hầm có kích thước 16m x 16m x 3,3m. Có một khoảng trống 6,5m x 6,5m ở giữa các hộp, nơi đặt ao cá ở tầng trệt.

{keywords}
Mặt trước của biệt thự ở hướng Đông. 
{keywords}
Hồ bơi ở mặt sau, hướng về thung lũng có sân golf. 

Lối vào của ngôi nhà là từ chân núi, các kiến ​​trúc sư đã thiết kế sảnh chính ở tầng trệt, phía trước và phía sau được mở rộng và liên thông với sân trong, giúp ngôi nhà không bị che khuất cảnh quan thung lũng, mọi người có thể nhìn từ đường chính.

{keywords}
Khung cảnh thơ mộng bên ngoài công trình. 

Sân và ao cá cũng góp phần để đưa gió vào nhà. Sảnh chính được thiết kế mở, là nơi để thành viên trong gia đình ngồi uống trà, thư giãn và cảm nhận những khoảnh khắc thay đổi của thời tiết, cảnh vật, nắng mưa.

{keywords}
Sảnh chính ở tầng trệt, trước và sau được mở rộng và liên thông với sân trong. 
{keywords}
Sân và ao góp phần trong vấn đề thông gió cho ngôi nhà. 
{keywords}
Dưới ao cá này là tầng hầm, nơi có khu vực quầy bar và hầm rượu. 

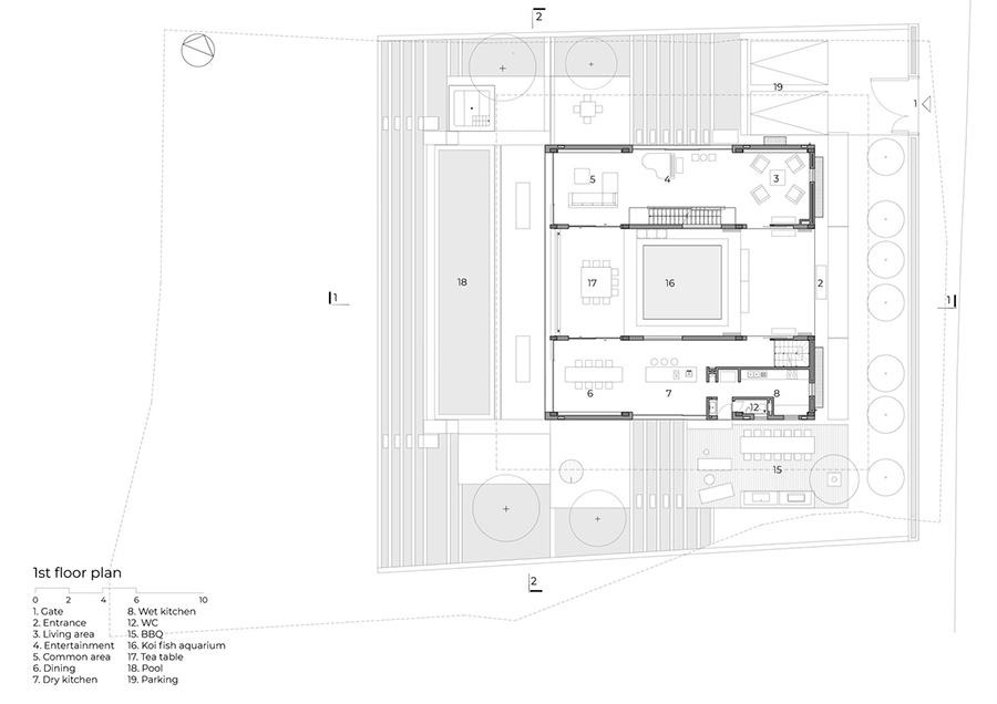
Tầng 1 là nơi tiếp khách và bếp chính liên thông với khu BBQ ngoài trời. Tầng hầm gồm 2 phòng ngủ có tầm nhìn ra thung lũng, khu vực quầy bar và hầm rượu, nơi mọi người có thể ngắm hoàng hôn và đàn cá bơi qua bể cá lớn. Tầng 2 bố trí phòng ngủ chính và 3 phòng ngủ khác.

{keywords}
Một góc của mặt sau căn biệt thự. 
{keywords}
Mặt bằng chi tiết tầng 1. 
{keywords}
Phòng ăn thoáng đãng. 
{keywords}
Các khoảng trống và ô đặc được bố trí đan xen nhau. 

{keywords}

Khu BBQ ngoài trời. 

Các khoảng trống và ô đặc được đan xen nhau để thông gió và lấy thêm ánh sáng tự nhiên vào mọi ngóc ngách trong nhà. Các góc nhìn được xuyên qua nhiều lớp khoảng trống tạo nên chiều sâu của không gian. Sân thượng là khu vực cắm trại, nơi mọi người có thể trải nghiệm sương sớm hoặc có thể đi bộ từ núi xuống thung lũng và quay trở lại.

{keywords}
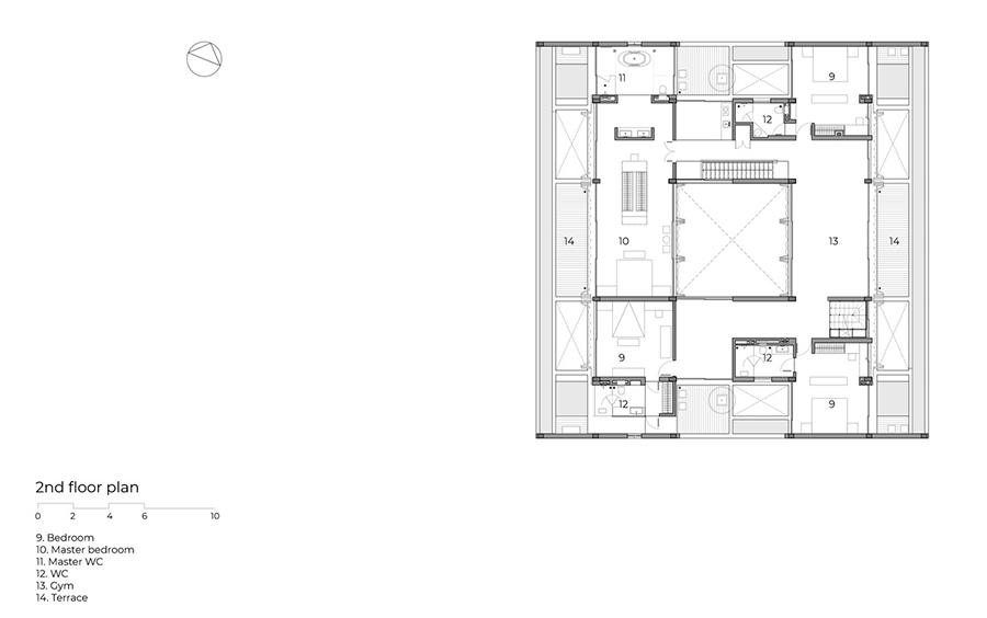
Tầng 2 gồm 1 phòng ngủ chính và 3 phòng ngủ khác. 
{keywords}
Gỗ là vật liệu chính trong thiết kế nội thất của biệt thự. 
{keywords}
Một trong 4 phòng ngủ trên tầng 2. 

{keywords}

Phòng tắm trong phòng ngủ chính. 
{keywords}
Cầu thang từ tầng 2 lên sân thượng. 

{keywords}

Các phòng ngủ trên tầng 2 đều có hướng nhìn thoáng đãng ra thiên nhiên. 
{keywords}
Sân thượng của biệt thự. 
{keywords}
Đây là không gian thích hợp tổ chức các hoạt động ngoài trời. 

Các bậc thang dài ngang được đục rỗng để giảm nhịp, tránh cảm giác quá dài và tạo tầm nhìn thoáng đãng. Những bậc thang này cũng tạo ra không gian đệm hoặc ranh giới mờ ảo giữa không gian trong nhà và khung cảnh bên ngoài.

{keywords}
Địa hình dốc về hướng thung lũng được xử lý bằng những bậc thang. 
{keywords}
Quang cảnh phía sau biệt thự. 
Biệt thự biển ở Đà Nẵng ấn tượng với thiết kế mặt tiền lấy cảm hứng từ san hô

Biệt thự biển ở Đà Nẵng ấn tượng với thiết kế mặt tiền lấy cảm hứng từ san hô

Thách thức đối với đội ngũ kiến trúc sư trong dự án này là làm sao thiết kế một ngôi nhà mở với môi trường, hòa hợp với thiên nhiên nhưng vẫn thích ứng với điều kiện khí hậu địa phương.

Quang Đăng (Dịch)