Địa điểm xây dựng nhà vườn mái Nhật này nằm ở Kariya Aichi, Nhật Bản, nơi có nhiều công ty liên quan đến ô tô của thành phố. Xung quanh khu đất là một khu bán công nghiệp, có nhiều nhà máy cũ và khu dân cư xen kẽ. Kiến trúc sư lên kế hoạch thiết kế một ngôi nhà vườn thích ứng với điều kiện tự nhiên.  

{keywords}
Khu đất xây dựng ngôi nhà rất vuông vức. 

Xung quanh khuôn viên khu đất là bãi đậu xe lớn, có rất nhiều người và phương tiện ra vào. Nó thuộc sở hữu của một công ty, và dự kiến các tòa nhà lớn như nhà máy sẽ được xây dựng trong tương lai. 

Vì lý do đó, kiến trúc sư cảm thấy sẽ có nhiều bất tiện khi xây dựng ngôi nhà với một mặt tiền chính cố định. Sẽ thích hợp hơn với phương án xây dựng mặt tiền của ngôi nhà sao cho linh hoạt hơn là điều chỉnh cụ thể theo địa thế của khu đất.

{keywords}
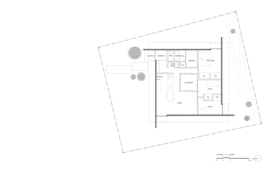
Mặt bằng chi tiết của ngôi nhà. 

Đầu tiên, 4 bức tường phẳng được bố trí ở trung tâm của khu đất sao cho tương ứng với 4 ranh giới, và tất cả đều là mặt tiền. Các bức tường dài và lớn thích hợp với điều kiện môi trường xung quanh và quy mô của một ngôi nhà nhỏ. 

{keywords}
4 mặt của ngôi nhà. 

Hơn nữa, với cách sắp xếp 4 bức tường ở 4 hướng ranh giới tương ứng và lệch một chút, kiến trúc sư đã dành ra một khoảng trống để thích ứng với những thay đổi trong tương lai của môi trường xung quanh.

{keywords}
Trước nhà là một khoảng sân rộng. 

Không gian bên trong được bố trí sao cho tất cả các phòng đều tiếp xúc với 4 bức tường này, có khoảng sân ở chính giữa. Khi mặt trời di chuyển, ánh sáng chiếu vào nhà qua các khoảng trống giữa 4 bức tường và sân trong. Sân lấy sáng bên trong không bị ảnh hưởng bởi môi trường xung quanh và kết nối các không gian chức năng liền kề một cách tự nhiên.

{keywords}
Giữa nhà có một giếng trời.
{keywords}
Lối đi chính vào nhà. 

Ngôi nhà dường như không có sự phân biệt về mặt trước và mặt sau. Hướng từ nhà ra đường được thiết kế theo các cao độ khác nhau. Tuyến phố trước nhà được hình thành từ con đường và các ngôi nhà lân cận, tuy nhiên với nhà vườn này, kiến trúc sư đã tạo ra khoảng lùi cần thiết. 

{keywords}
4 mặt của ngôi nhà không có sự khác biệt. 
{keywords}
Mỗi mặt đều có bức tường dài và lớn.

Kiến trúc sư cho rằng, trong một thành phố với quy mô hỗn hợp, một phong cách kiến ​​trúc linh hoạt sẽ dẫn đến một cuộc sống phong phú ở khu vực này.

{keywords}
Cửa lớn bên hông ngôi nhà đóng vai trò như cửa chính, giúp lấy ánh sáng vào nhà. 
{keywords}
Không gian nhà bếp tràn ngập ánh sáng tự nhiên. 
{keywords}
Các không gian chức năng khác được liên kết với khoảng sân trong. 
{keywords}
Khoảng sân trong đóng vai trò như một giếng trời. 
{keywords}
Kiến trúc độc đáo của ngôi nhà mang đến sự khác biệt. 
Biệt thự vườn xanh mướt ở Phú Quốc độc đáo  nhờ thiết kế không có cửa

Biệt thự vườn xanh mướt ở Phú Quốc độc đáo nhờ thiết kế không có cửa

Nằm trong tổng thể dự án, mỗi cụm biệt thự tạo thành một xóm nhỏ có lối đi riêng và sân chung, mang đến hình ảnh làng quê thân thuộc. Mỗi biệt thự vẫn có được sự riêng tư và hoà quyện với thiên nhiên. 

Quang Đăng (Dịch)