Lấy cảm hứng từ công trình Villa Savoye nổi tiếng của kiến trúc sư người Pháp và sự cởi mở của kiến ​​trúc bản địa, căn biệt thự này như một khối hộp nằm tựa trên các cột, giúp giải phóng không gian tầng trệt. 

Thiết kế của công trình này là đáp ứng được phong cách sống đương đại tối giản của người trẻ thành đạt, chủ nhân sở hữu bộ sưu tập xe hơi “khủng” tại một nơi được xem là “khu nhà giàu” của TP.HCM. 

{keywords}
Biệt thự toạ lạc ở P.Thảo Điền, TP.Thủ Đức, nơi được biết đến là "khu nhà giàu" của TP.HCM. 
{keywords}
Mặt tiền công trình. 

Tầng hầm của biệt thự có sức chứa 7 ô tô, có khoảng sân vườn lấy sáng và thông gió tự nhiên. Lối vào chính bắt đầu từ đây, theo đoạn đường dốc đi xuyên qua không gian mở với tràn ngập cây xanh này, dẫn lên tầng trên là không gian sinh hoạt, nhà bếp và ăn uống thoáng đãng. 

{keywords}
Mặt bằng chi tiết tầng hầm biệt thự. 
{keywords}
Tầng hầm có khoảng sân nhỏ. 
{keywords}
Ga-ra ở tầng hầm có sức chứa 7 chiếc xe ô tô. 
{keywords}
Có lối đi dốc từ tầng hầm lên tầng trệt. 
{keywords}
Giếng trời ở giữa nhà giúp lấy ánh sáng và thông gió. 

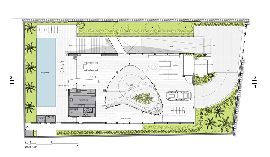
Tầng trệt được thiết kế mở, không có tường ngăn, tạo sự kết nối trực quan cho toàn bộ khuôn viên. Không gian chức năng được thiết kế mở trực tiếp ra sân vườn và cảnh quan xung quanh. 

Từ tầng này, gia chủ có thể có tầm nhìn trực diện ra bộ sưu tập ô tô. Kết cấu được tối giản hóa, tận dụng dầm vượt nhịp dài, tạo cho không gian sự thông thoáng và sang trọng.

{keywords}
Mặt cắt của cộng trình. 
{keywords}
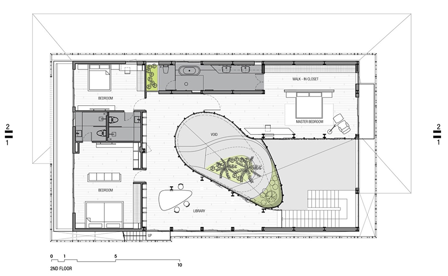
Mặt bằng chi tiết tầng trệt của biệt thự. 
{keywords}
Biệt thự như một khối hộp nằm trên các cột giúp giải phóng không gian cho tầng trệt. 
{keywords}
Tại tầng trệt còn có một lối vào nhà cho xe ô tô. 
{keywords}
Có chỗ đậu ô tô ở ngay không gian tiếp khách. 
{keywords}
Không gian phòng khách vô cùng thoáng đãng. 
{keywords}
Khoảng thông tầng nằm giữa nhà giúp cho gia chủ ở tầng trệt có thể nhìn ngắm siêu xe ở tầng hầm. 
{keywords}
Chùm đèn trang trí được bố trí ngay trên chỗ đậu xe ô tô trong nhà. 
{keywords}
Nhà bếp và không gian ăn uống liên thông với phòng khách. 
{keywords}
Không gian bếp và bàn ăn có hướng nhìn ra bể bơi vô cực. 
{keywords}
Sân sau là khoảng không gian riêng tư của gia đình.
{keywords}
Bể bơi vô cực nhìn từ trên cao. 
{keywords}
Việc hạn chế tối đa tường ngăn giúp người trong nhà dễ dàng tận hưởng môi trường thiên nhiên. 

Với sân sau là không gian riêng tư chính của gia đình, hồ bơi được bố trí liên thông với nhà bếp và không gian ăn uống. Không gian được bao bọc bởi một tán cây rộng lớn để tránh ánh nắng gay gắt của nhiệt đới và gió mùa, đồng thời người trong nhà có thể trải nghiệm những yếu tố tự nhiên này.

Thiết kế được lấy cảm hứng từ hình tượng xếp lớp trong trang phục truyền thống Việt Nam. Đó là sự kết hợp của nhiều lớp vải mỏng, duyên dáng nhưng vẫn quyến rũ, đáp ứng được cả điều kiện khí hậu và sự kín đáo truyền thống. 

{keywords}
Ba phòng ngủ được bố trí ở tầng trên cùng của biệt thự. 
{keywords}
Cả ba phòng ngủ đều có ánh sáng tự nhiên. 
{keywords}
Phòng ngủ lớn còn có tầm nhìn ra khoảng thông tầng. 
{keywords}
Nhà vệ sinh của phòng ngủ lớn rất rộng rãi.
{keywords}
Ngoài ba phòng ngủ còn có Không gian đọc sách ở tầng trên cùng. 
{keywords}
Căn biệt thự này có diện tích gần 1.100m2. 

Kiến trúc truyền thống nhà ở tại Việt Nam có những đặc tính khá giống nhau. Các ngôi nhà được bao phủ bởi nhiều lớp làm bằng gỗ hoặc vật liệu tự nhiên, hoặc qua các lớp mái hiên, hành lang và sảnh lớn. 

Cách thiết kế này vừa đơn giản vừa chống chọi với khí hậu địa phương với nhiều nắng và mưa. Đồng thời, đây cũng là nét đặc trưng của nền văn hóa coi trọng sự riêng tư và kết nối giữa con người và thiên nhiên.

Biệt thự hiện đại dư thừa không gian xanh ở 'khu nhà giàu' TP.HCM

Biệt thự hiện đại dư thừa không gian xanh ở 'khu nhà giàu' TP.HCM

Toạ lạc ở "khu nhà giàu" P.Thảo Điền, TP.Thủ Đức, TP.HCM, nơi được xem là "tấc đất tấc vàng", thế nhưng chủ của căn biệt thự này lại không tiếc diện tích để bố trí thật nhiều mảng xanh. 

Quang Đăng (Dịch)