Đây là ngôi nhà vườn 1 tầng 4 phòng ngủ yên bình nằm giữa ngôi làng thanh bình và dòng sông Chaliyar, Ấn Độ. Từ nội thất đến ngoại thất, ngôi nhà toát lên sự vững chắc và mang đậm bản sắc riêng. 

{keywords}
Ngôi nhà được bao bọc bởi nhiều cây xanh. 
{keywords}
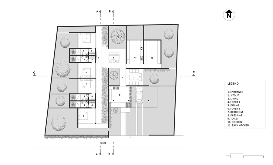
Ngôi nhà vườn này được bố trí 4 phòng ngủ. 

Với vẻ đẹp vốn có của cảnh vật xung quanh, kiến trúc sư cố gắng mang lại một không gian sống tốt nhất để gia chủ, tránh xa những xô bồ trong cuộc sống bằng cách xoá nhoà ranh giới giữa nội thất và ngoại thất. Các không gian xanh được đưa vào giữa nhà để làm dịu đi sự khô cứng của phần kết cấu. 

{keywords}
Mặt đứng của công trình. 
{keywords}
Mặt cắt của công trình. 

Đi từ cổng vào đến các bậc tam cấp rộng và sau đó xuyên suốt toàn bộ ngôi nhà, có thể nhận thấy sự phân cấp của kết cấu. Từ bức tường thô ráp đến những mặt tường sơn hoàn thiện. Việc phân chia không gian bằng sàn bê tông và sàn gỗ làm cho ngôi nhà không còn đơn điệu. 

{keywords}
Trước nhà là khoản sân vườn rộng. 
{keywords}
Hiên nhà như một không gian đệm. 

Ngôi nhà vườn với 1 tầng duy nhất kết hợp không gian tương tác đối đa cho các thành viên trong gia đình là yêu cầu của gia chủ đưa ra. Các không gian riêng tư trong ngôi nhà được ngăn chia bằng bức tường bê tông đậm, bao phủ bởi những mảng xanh tươi tốt. 

{keywords}
Lối đi chính vào nhà.
{keywords}
Góc thư giãn ở hiên nhà. 

Sân trong được bố trí bên trong nhà vệ sinh với hệ thống thông gió gián tiếp trên mái giúp duy trì tính thẩm mỹ. Cửa chính xoay đơn giản nhưng táo bạo và cửa trượt của các phòng ngủ nổi bật trong toàn bộ thiết kế.

{keywords}
Ngay sau cửa chính là lối đi.
{keywords}
Bên trái lối đi này là khoảng sân trong. 

Hệ thống lấy gió và ánh sáng được chế tác bằng một dải lưới mắt cáo chạy dọc theo hướng Bắc, nơi đây được bố trí không gian phòng khách, phòng ăn và nhà bếp. Thiết kế này mang lại cho ngôi nhà làn gió mát và giảm bớt ánh nắng gây gắt. 

{keywords}
Bên phải lối đi trong nhà là không gian phòng khách. 

Sự thay đổi trong thiết kế các mái dốc và mái bằng với cao độ khác nhau cũng như các lỗ thông gió trên đường mái giúp cho bên ngôi nhà có nhiều gió hơn. 

{keywords}
Bên trong ngôi nhà được bố trí nhiều mảng xanh. 

Tất cả các yếu tố từ ngói lợp, ánh sáng đến vật dụng nội thất làm tăng thêm nét mộc mạc cho ngôi nhà. Tường bếp được sơn thay vì ốp lát làm tăng thêm sự hài hoà về màu sắc của ngôi nhà. Đường dây điện được giấu vào giữa mái lợp và ngói trần, nơi này có vai trò như trần giả. 

{keywords}
Nối tiếp không gian sân trong là phòng ăn. 
{keywords}
Không gian ăn uống tràn ngập ánh sáng tự nhiên nhờ tiếp xúc với sân vườn sau nhà. 
{keywords}
Nơi đây cũng là không gian sinh hoạt chung của cả gia đình. 

Ngôi nhà vườn này được xây dựng theo hướng Bắc – Nam, việc bố trí khu vực bếp và sinh hoạt chung mang đến không gian tràn ngập ánh nắng buổi sáng. Nội thất tràn ngập ánh sáng tự nhiên còn giúp cho gia chủ giảm thiểu sử dụng đèn điện. 

{keywords}
Nhà bếp được bố trí trong một không gian riêng biệt nhưng vẫn rất thông thoáng. 
{keywords}
4 phòng ngủ được bố trí theo một dãy. 
{keywords}
Trước dãy phòng ngủ là mảng xanh chạy dài suốt hành lang. 
{keywords}
Trong phòng vệ sinh của mỗi phòng ngủ đều có cây xanh và ánh sáng tự nhiên. 

Ngôi nhà là sự kết hợp hài hoà giữa sự khô cứng của tường bê tông, tường đá, gỗ và sự mềm mại của không gian xanh. Công trình mang phong cách kiến trúc nhiệt đới của vùng nông thôn Nilambur, gợi lên cảm giác mộc mạc nhưng vẫn rất sang trọng.

{keywords}
Ngôi nhà vườn này là sự kết hợp giữa sự mộc mạc và sang trọng. 
Độc lạ nhà vườn mái Nhật 4 hướng đều là mặt tiền

Độc lạ nhà vườn mái Nhật 4 hướng đều là mặt tiền

Với phương án thiết kế 4 bức tường ở 4 hướng ranh giới khu đất và lệch góc, ngôi nhà vườn mái Nhật này dễ dàng thích ứng với những thay đổi khi các công trình lân cận được xây dựng. 

Quang Đăng (Dịch)