Tọa lạc tại TP.Cần Thơ, bên dòng sông Mekong êm đềm, biệt thự này được thiết kế theo phong cách hiện đại, phù hợp với Tiêu chuẩn Công trình Xanh của Lotus Home, được chứng nhận bởi Hội đồng Công trình Xanh Việt Nam, với không gian mở giao hoà với thiên nhiên. 

{keywords}
Biệt thự có diện tích 1.800m2. 

Với mật độ xây dựng dưới 15%, ưu tiên cho không gian xanh, mặt nước, bề mặt cỏ thấm nước mưa, cây xanh trên mái… tất cả góp phần làm giảm hiệu ứng đảo nhiệt đô thị.

Cảnh quan khu vườn được trồng các loại cây ăn trái, cây xanh địa phương như: Xoài, vú sữa, chôm chôm, kè…, hồ cá sinh thái bờ mềm, trồng các loại cây thủy sinh lọc nước tự nhiên như sen, hoa súng,rau má, thuỷ trúc… 

Ngôi nhà, cây cối địa phương, ao sinh thái giúp hút nước mưa. Trong tương lai, gia chủ có thể sử dụng hệ thống lọc để tái sử dụng nước mưa thành nguồn nước uống tinh khiết. 

{keywords}
Biệt thự nằm trong khu dân cư quy hoạch mới, hạ tầng hoàn chỉnh. 
{keywords}
Biệt thự có thiết kế kiến trúc hiện đại. 
{keywords}
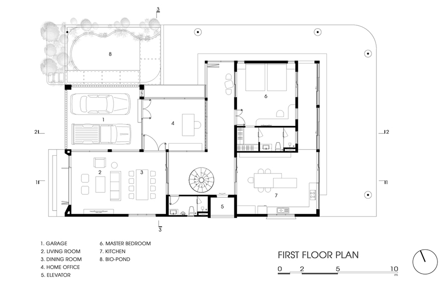
Mặt bằng chi tiết tầng 1. 

Nằm ở vùng khí hậu đặc trưng gió mùa của Đồng bằng sông Cửu Long, biệt thự này được thiết kế với các không gian mở, các bức tường hoa gió, các vị trí cửa đi và cửa sổ được bố trí hợp lý nhằm đón và tối ưu hoá các dòng gió đối lưu đem đến sự mát mẻ tự nhiên bên trong nhà. 

Với nguồn sáng mặt trời dồi dào của vùng nhiệt đới, kiến ​​trúc sư đã đưa giải pháp chiếu sáng tự nhiên vào công trình như: Sân vườn trong nhà, giếng trời cùng các cửa sổ lấy sáng lớn giúp công trình gần như không phải sử dụng ánh sáng nhân tạo vào ban ngày. Các thành viên trong gia đình dễ dàng nhìn thấy nhau và tận hưởng vẻ đẹp của khu vườn xung quanh. 

{keywords}
Với mật độ xây dựng dưới 15%, gia chủ muốn ưu tiên cho không gian xanh. 
{keywords}
Góc thư giãn ngoài trời thú vị. 

{keywords}

Không gian phòng khách tràn ngập ánh sáng tự nhiên. 
{keywords}
Nhà bếp được bao bọc bởi sân vườn. 
{keywords}
Giải pháp thông gió cho công trình. 
{keywords}
Cầu thang xoắn ốc đặt ở vị trí trung tâm biệt thự. 
{keywords}
Cầu thang này như là một điểm nhấn của ngôi nhà. 
{keywords}
Nó còn có vai trò như một giếng trời lấy ánh sáng tự nhiên cho không gian sảnh chính của ngôi nhà. 

Công trình sử dụng các vật liệu thân thiện với môi trường như gạch không nung làm vách ngăn, thép chịu nhiệt cho hàng rào và mặt tiền hai lớp. Gỗ trồng được sử dụng cho sàn và đồ nội thất. 

Việc kết hợp đồng bộ giữa các giải pháp thông gió và lấy ánh sáng tự nhiên, cách nhiệt cho mái, mặt tiền hai lớp, kính hai lớp low-E che nắng hướng Tây… giúp cho ngôi nhà sử dụng năng lượng nhân tạo một cách hiệu quả và tiết kiệm. 

Con đường cảnh quan dài 50m tạo sự kết nối cho người dân địa phương tiếp cận với công viên cây xanh gần đó và có thể sử dụng cho các hoạt động cộng đồng khác. 

{keywords}
Mặt bằng chi tiết tầng 2 của biệt thự. 
{keywords}
Tầng 2 bố trí 3 phòng ngủ. 
{keywords}
Các phòng ngủ được trang trí theo phong cách khác nhau. 

Ngôi nhà được phân chia theo từng khu vực rõ ràng. Phòng ngủ chính nằm ở khu vực riêng tư nhưng vẫn có tầm nhìn đẹp nhất ra khu vườn xung quanh nhà. Ở tầng một, các phòng ngủ khác nằm xung quanh một khu vườn nhỏ và yên tĩnh. Khu vườn này cũng là không gian để thư giãn và mang nhiều ánh sáng tự nhiên và thông gió vào các phòng ngủ.

Phòng khách, phòng ăn và bếp được thiết kế sang trọng. Mỗi phòng ngủ đều có thiết kế hiện đại và trang nhã, thể hiện cá tính của người sử dụng. Bên trong tất cả các phòng luôn có ánh sáng tự nhiên và tầm nhìn ra sân vườn

{keywords}
Tầm nhìn xuống sân vườn từ tầng 2. 
{keywords}
Các mảng xanh được đưa vào từng ngóc ngách của công trình. 
{keywords}
Thép chịu nhiệt được sử dụng trong công trình. 
{keywords}
Hệ thống cửa hai lớp này vừa có tác dụng chống ánh nắng trực tiếp...

{keywords}

... vừa hiệu quả trong việc tận dụng tối đa ánh sáng tự nhiên vào ngôi nhà.  

Cầu thang xoắn ốc là điểm nhấn nghệ thuật ở vị trí trung tâm ngôi nhà. Đây cũng là giếng trời để lấy ánh sáng tự nhiên và lưu thông không khí cho công trình. 

Tầng trên cùng là không gian thư giãn với phòng xông hơi giữa thiên nhiên. Gạch hoa gió được sử dụng nhằm tạo sự riêng tư nhưng vẫn đáp ứng sự thông thoáng và chiếu sáng tự nhiên. 

{keywords}
Tầng trên cùng của biệt thự là không gian thư giãn của gia đình. 
{keywords}
Tầm nhìn từ các không gian ở tầng 2 rất thoáng đãng. 
{keywords}
Phòng xông hơi nằm ở tầng trên cùng của biệt thự. 
{keywords}
Con đường cảnh quan dài 50m, nơi người dân địa phương có thể đi ra công viên gần đó và có thể sử dụng cho các hoạt động cộng đồng khác. 
{keywords}
Đây là công trình nhà ở đầu tiên tại TP.Cần Thơ đạt chứng nhận công trình xanh của Hội đồng Công trình Xanh Việt Nam. 
Mê mẩn biệt thự có chỗ đậu siêu xe ngay phòng khách ở ‘khu nhà giàu’ TP.HCM

Mê mẩn biệt thự có chỗ đậu siêu xe ngay phòng khách ở ‘khu nhà giàu’ TP.HCM

Các không gian được thiết kế mở mang lại tầm nhìn thoáng đãng nhưng vẫn giữ được sự riêng tư. Không chỉ là không gian sống sang trọng, đây còn là nơi thoả mãn sở thích của gia chủ mê siêu xe.

Quang Đăng