Diện tích ngôi nhà không lớn nhưng sắp xếp, bài trí hợp lý vẫn đủ cho gia đình nhỏ có không gian sống thoải mái.
Hỏi:
Kính gửi chuyên mục Nhà đẹp!
Vợ chồng tôi có một mảnh đất diện tích 45,5m2, mặt tiền 4,5m, chiều dài 10,1m. Vợ chồng tôi lên kế hoạch xây dựng nhà trong năm nay. Nhà tôi muốn xây có ba tầng, thiết kế đơn giản, hợp lý. Số tiền vợ chồng tôi có khoảng 650 triệu đồng. Công năng các tầng tôi dự định phân chia như sau:
-Tầng 1 gồm có: Sân trước, phòng khách, phòng bếp và bàn ăn.
-Tầng 2 gồm có: Hai phòng ngủ, một phòng học và một phòng tắm.
-Tầng 3 gồm có: Một phòng ngủ, một phòng tắm, sân phơi và phòng thờ.
Hy vọng Kiến trúc sư (KTS) sẽ sớm đưa ra phương án thiết kế khoa học, tiết kiệm chi phí giúp gia đình tôi. Xin cảm ơn KTS!
(TV – Ninh Bình)
Trả lời:
Theo thông tin gia chủ cho biết thì ngôi nhà có diện tích nhỏ vừa phải. Để xây một ngôi nhà ba tầng với số lượng các phòng chức năng như chủ nhà mong muốn thì KTS cần cân nhắc phân chia các không gian hợp lý. Bởi, nếu không bố trí, sắp xếp khoa học các phòng sẽ chật chội, khó chịu. Về số tiền gia đình chuẩn bị qua tính toán của KTS có thể nhận thấy hơn 650 triệu đồng vừa đủ để xây một ngôi nhà hiện đại với thiết kế kiến trúc và nội thất đơn giản, hài hòa.
Tổng chi phí dự tính là 663 triệu đồng. Cụ thể từng hạng mục như sau:
| STT | Hạng mục công trình | Chi phí (Đơn vị: Triệu đồng) |
| 1 | Phần thô | 450 |
| 2 | Gạch | 30 |
| 3 | Đá granit | 20 |
| 4 | Cửa | 18 |
| 5 | Hệ thống điện nước | 25 |
| 6 | Sơn nhà | 26 |
| 7 | Nhôm kính | 18 |
| 8 | Tủ bếp và bàn ăn | 20 |
| 9 | Giường ngủ ba phòng | 15 |
| 10 | Tủ quần áo | 16 |
| 11 | Sofa và tủ phòng khách | 20 |
| Tổng: 663 (triệu đồng) | ||
Dưới đây là phương án thiết kế chi tiết do KTS cân nhắc đưa ra:
*Về phương án thiết kế mặt bằng
- Mặt bằng tầng 1:
Tầng một KTS trừ ra một phần nhỏ diện tích phía trước làm sân và chỗ để xe. Bên trong là hai không gian chính: phòng khách và phòng bếp bàn ăn. Để tiết kiệm diện tích, cầu thang được thiết kế nhỏ gọn. Phòng khách và phòng bếp rộng tương đương nhau và vuông vắn nên dễ bài trí nội thất. Phòng bếp và bàn ăn thoáng khí do có cửa sổ và cửa ra vào mở ra sân nhỏ sau nhà. Gần cầu thang KTS không quên dành diện tích để bố trí một phòng vệ sinh nhỏ tiện sử dụng.
![]() |
| Mặt bằng tầng 1. |
- Mặt bằng tầng 2:
Hai phòng ngủ tầng hai, một phòng dành cho vợ chồng gia chủ sắp xếp ở phía trước không gian. Phía sau là phòng ngủ của con chủ nhà. KTS thiết kế phòng học ngay cạnh phòng ngủ của con để con sử dụng thuận tiện hơn. Phòng học có thể sử dụng để cả hai con học bài hoặc bố mẹ làm việc khi cần không gian yên tĩnh. Phòng tắm sử dụng chung cho hai phòng ngủ được KTS thiết kế ngay cạnh phòng ngủ của bố mẹ.
![]() |
| Mặt bằng tầng 2. |
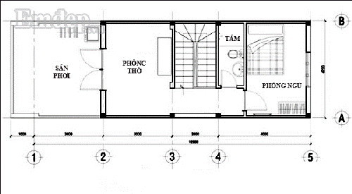
- Mặt bằng tầng 3:
Phòng ngủ tầng ba cho con khá thoải mái. KTS thiết kế ban công và cửa sổ rộng để không gian riêng cho con luôn thoáng mát, dễ chịu. Cạnh phòng ngủ là phòng tắm nhỏ. Bên trong là phòng thờ và sân phơi.
![]() |
| Mặt bằng tầng 3. |
*Về phương án phối cảnh kiến trúc mặt tiền
Toàn bộ mặt tiền ngôi nhà được KTS thiết kế theo phong cách kiến trúc hiện đại, đơn giản. Khác với các ngôi nhà khác, mặt tiền không gian nhà 45,5m2 này được tô điểm bởi nhiều gạch với màu sắc và họa tiết thanh nhã. Các gam màu xanh nhạt, nâu nhạt hay vàng, trắng... xen kẽ nhau mang đến nét trẻ trung, tươi tắn cho tổng thể không gian sống. Cửa kính vẫn là lựa chọn tốt nhất vừa tiết kiệm chi phí vừa giúp các phòng chức năng bên trong có thể lấy sáng hiệu quả. Điều này là vô cùng cần thiết đối với nhà phố, đặc biệt là những ngôi nhà có diện tích vừa và nhỏ.
![]() |
| Mặt tiền được KTS thiết kế đơn giản nhưng vẫn nổi bật. |
Một số gợi ý về cách bài trí các phòng chức năng:
![]() |
Phòng khách nhỏ xinh xắn và rộng hơn diện tích thực nhờ sử dụng gam màu trắng chủ đạo.
![]() |
Phòng bếp và bàn ăn sắp xếp khoa học. (Ảnh minh họa)
![]() |
Phòng ngủ dành cho vợ chồng gia chủ đơn giản và thoáng mát. (Ảnh minh họa)
![]() |
Phòng ngủ xinh xắn, đáng yêu cho con gia chủ. (Ảnh minh họa)
![]() |
Một thiết kế khác phòng ngủ dễ thương dành cho con gia chủ. (Ảnh minh họa)
Trên đây là phương án do KTS cân nhắc kĩ lưỡng và đưa ra. Chúc gia đình luôn tràn ngập niềm vui và sớm có tổ ấm đẹp khang trang!
Theo Em đẹp

Cư dân mạng hiến kế xây nhà 2 tầng tuyệt đẹp chỉ với 200 triệu ở quê
Các cặp vợ chồng trẻ, muốn có tổ ấm riêng cho mình mà đang hạn hẹp về kinh tế có thể tham khảo kinh nghiệm xây nhà với chi phí chỉ khoảng 200 triệu dưới đây của cư dân mạng.
Chìm đắm trong ngôi nhà vườn đẹp lãng mạn như một bức tranh đồng quê
Không gian mới thoạt nhìn sẽ không có nhiều điều bất ngờ. Tuy nhiên, nếu dành chút thời gian ngắm từng góc nhỏ, bạn sẽ thấy nếu sở hữu ngôi nhà vườn đáng yêu này là một điều ước tuyệt vời cho cuộc đời của chính mình.








