Khi nhóm kiến trúc sư thực hiện dự án thiết kế công trình này cũng là lúc dịch Covid-19 bùng phát. Các trường học và điểm vui chơi giải trí đóng cửa để thực hiện các biện pháp giãn cách xã hội. 

{keywords}
Ngôi nhà này có diện tích 117m2, toạ lạc ở Q.7, TP.HCM.

Các không gian nhà ở đang bắt đầu đảm nhận nhiệm vụ phục vụ con người nhiều hơn, khó khăn hơn là các không gian nhà ở chật hẹp nằm bên trong các thành phố lớn. Kiến trúc sư đặt vấn đề ưu tiên không gian cho trẻ nhỏ và không gian nghỉ ngơi cũng được quan tâm nhiều hơn.

{keywords}
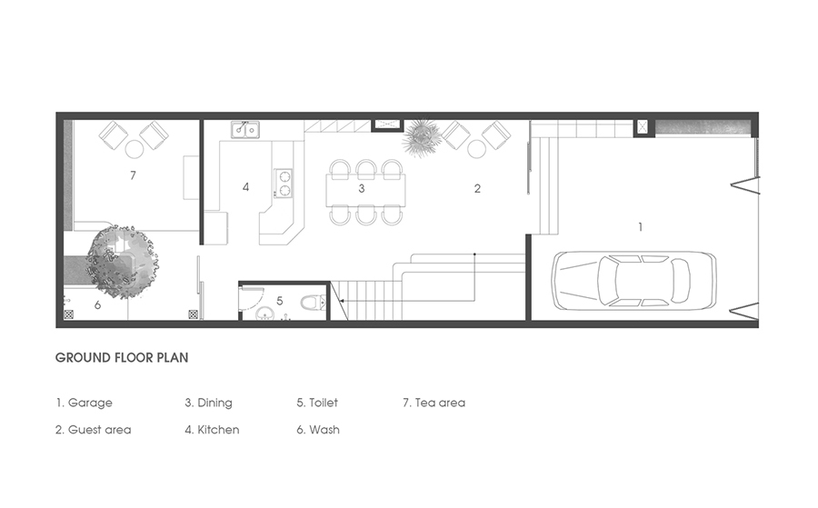
Mặt bằng chi tiết tầng trệt. 
{keywords}
Bậc cầu thàng ngay lối vào nhà được thiết kế thành nơi vui chơi cho trẻ.
{keywords}
Bếp và bàn ăn là khu vực trung tâm ở tầng trệt. 
{keywords}
Một góc không gian chính của tầng trệt. 
{keywords}
Cuối nhà là không gian uống trà, tiếp khách. 
{keywords}
Nơi đây được thiết kế tối giản. 
{keywords}
Còn có nơi vui chơi cho trẻ em. 
{keywords}
Khoảng thông tầng cuối nhà làm cho không gian rất thoáng đãng. 
{keywords}
Không gian xanh được gia chủ chăm chút ở cuối nhà. 

{keywords}

Cầu thang dẫn lên tầng 1 ngôi nhà. 

Công trình này toạ lạc tại Q.7, TP.HCM. Căn nhà dành cho vợ chồng và hai con trai. Với diện tích 117m2 và kinh phí đầu tư hạn chế, nhóm thiết kế cân nhắc để tổ chức không gian sống, làm việc, nghỉ ngơi hợp lý, giải tỏa tâm lý ức chế khi bị hạn chế ra khỏi nhà và có thể bị giãn cách xã hội trong thời gian dài.

{keywords}
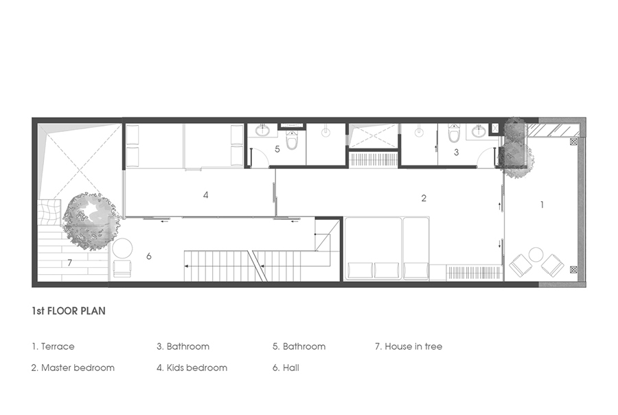
Mặt bằng chi tiết tầng 1. 
{keywords}
Đi hết cầu thang lên tầng 1 sẽ đến phòng ngủ cho hai con trai. 
{keywords}
Phòng ngủ bố mẹ cũng được bố trí ở tầng 1. 
{keywords}
Khoảng sân liên thông với phòng ngủ lớn. 
{keywords}
Mảng xanh ở khoảng sân ở tầng 1 nhìn từ bên ngoài. 

{keywords}

Cầu thang dẫn lên tầng 2. 

Việc phòng khách bị thu hẹp, loại bỏ phòng ngủ, kê giường tầng cho các con ở chung dẫn đến không gian nhiều để trồng cây xanh, bể bơi, nhà trên cây cho các bé vui chơi. Giúp giải phóng năng lượng cho bé.

Phòng ngủ cho con và phòng ngủ bố mẹ có cửa thông nhau, và thông ra ban công tạo không gian liên thông đủ dài để các con chạy nhảy thoải mái. Phòng ngủ được thiết kế vách kính lớn nhìn ra khoảng xanh và lấy ánh sáng tự nhiên từ các ô thông tầng để giúp phòng ngủ thông thoáng, giải phóng tầm nhìn.

{keywords}
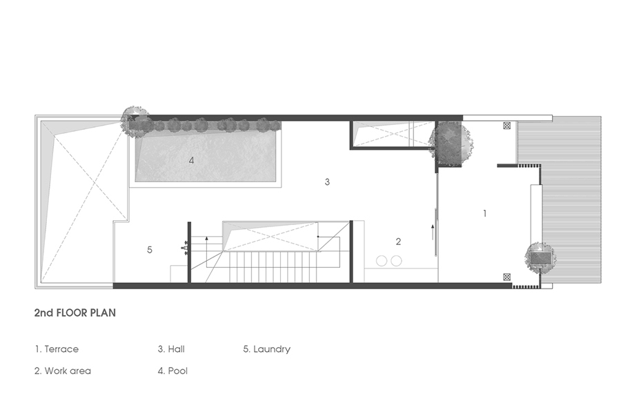
Mặt bằng chi tiết tầng 2. 
{keywords}
Khu vực chính ở tầng 2 là hồ bơi. 
{keywords}
Ngoài ra còn có không gian thư giãn ngoài trời.
{keywords}
Ánh nắng xuyên qua các lam sắt tạo hiệu ứng ánh sáng bắt mắt. 
{keywords}
Công trình có sự khác biệt so với các ngôi nhà lân cận.
Nức tiếng biệt thự đầu tiên ở Cần Thơ đáp ứng loạt tiêu chí công trình xanh

Nức tiếng biệt thự đầu tiên ở Cần Thơ đáp ứng loạt tiêu chí công trình xanh

Ngoài phong cách kiến trúc hiện đại, căn biệt thự này gây chú ý khi kết hợp đồng bộ các giải pháp không gian mở, thông gió và chiếu sáng tự nhiên, giúp con người sống chan hoà với thiên nhiên.   

Quang Đăng (Dịch)